Основные моменты монтажа электропроводки
Итак, когда схема уже составлена, и расположение всех розеток определено, необходимо приступать к основной работе. Если вы не имеете ни малейшего представления о том, как включается свет и работают розетки, не стоит браться за работу своими руками.
Монтаж розеток на кухне надо начинать с вводного щитка. На него должны устанавливаться защитные автоматы на силовые розетки. Вся разводка должна включать в себя детали, которые обеспечат безопасность:
- устройство защитного отключения
- автоматические выключатели
- предохранители
- розетки
Для прокладки новой проводки надо сделать правильный выбор проводов. Они могут быть медные и алюминиевые. Медные лучше алюминиевых: они прочнее, имеют длительный срок эксплуатации. Сегодня специалисты во всех современных домах используют медные провода.
Нюансы монтажа открытым и закрытым методом
Специалисты настоятельно рекомендуют скрытый способ проведения электрики на кухне как более безопасный для этого помещения.
Монтаж скрытой проводки в жилом помещении предполагает штробление стен с целью создания каналов для электросети с их последующей шпаклевкой и штукатуркой. В новостройке провода крепятся к стене специальным крепежом. В углубления устанавливают коробки и подрозетники. Для источников света кабель ведется через пустоты в потолочной плите. После полного монтажа сети производится штукатурка и косметический ремонт. Так что проводка оказывается полностью скрыта.
Открытая проводка крепится к стенам с помощью фарфоровых роликов, расположенных на расстоянии 50 см друг от друга. К проводам предъявляют те же требования, что и при скрытом способе. Они располагаются параллельно или под прямым углом к стенам помещения на расстоянии 10-20 см от карниза. Рядом с дверью или окном сеть проводят в 10 см от проема. Розетки и выключатель используются накладные. Их устанавливают на специальный внешний подрозетник.
Как правильно размещать розетки и выключатели
Прежде чем приступить к составлению схемы, необходимо выяснить, как будет расставлена на кухне техника и мебель. От этого зависит удобство и безопасность эксплуатации. Для кухни подойдут розетки с керамическими вставками, рассчитанные на 16 А.
При выборе места их расположения учитываются следующие моменты:
- Для подключения устройств небольшой мощности точки электропитания размещают на расстоянии 10 см от столешницы.
- Для крупной техники их устанавливают в 30-60 см от пола. Не более, чем в метре от электроприбора.
- Для вытяжки и телевизора придерживаются высоты 190-200 см от пола.
- Лучше запланировать одну розетку вне кухонной зоны для непредвиденных подключений (телефона, ноутбука и т. д.).
Выключатели рассчитаны на меньшую нагрузку, но чаще используются
Следует обратить внимание на поверхность корпуса. Шероховатое покрытие быстро собирает пыль
Лучше остановить выбор на гладком корпусе, который легче чистить. Жестких требований по установке выключателя нет. Чаще всего выбирают место по правую сторону на расстоянии 10 см от дверного проема и 150 см от пола.

Основные правила по выбору и расположению розеток и выключателей
Главные правила размещения розеток и выключателей при создании электропроводки своими руками таковы:
- Установку розеток на кухне нужно производить равномерно и так, чтобы проводка напрямую подходила к местам расположения оборудования;
- Нежелательно оставлять провисающие длинные провода;
- Расположение розеток выбирается так, чтобы они не располагались около раковины или плиты – это защитит их от деформации вследствие перегрева или повышенной влажности;
- Встраиваемые (скрытые розетки) прекрасно подойдут для дома, где живут маленькие дети. Кроме того, такие элементы никогда не испортят дизайн помещения. Кстати, нередко расположение розеток в столешнице, что очень удобно для подключения настольной техники;

- Должна обязательно соблюдаться высота розеток – низко расположенные элементы не всегда безопасны (особенно в домах с маленькими детьми);
- К одной и той же точке питания нельзя подключать несколько мощных приборов;
- Создается разводка по всему помещению – не стоит группировать розетки в одном месте, а особенно – сближать их по вертикали.
Как правильно выбрать розетки? И при установке розеток в столешницу, и при монтаже их на стену следует отдавать предпочтение изделиям, рассчитанным на ток более 16 ампер. Самыми долговечными считаются изделия, снабженные керамическими пластинами и никелированными ламелями. Что касается выключателей, то они должны быть гладкими, это существенно облегчит уборку.
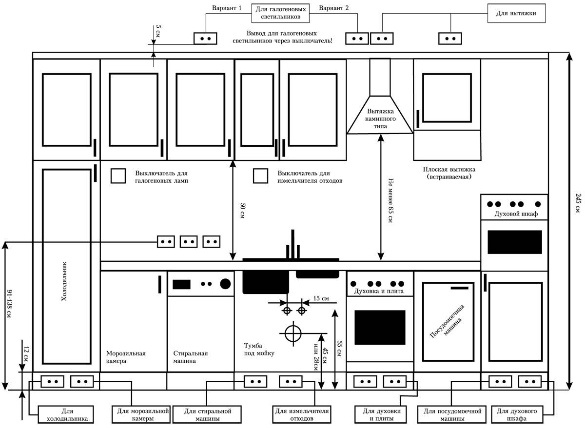
Расположение розеток на кухне осуществляется на высоте 30-40 см от пола, а выключатели устанавливаются на метровой высоте и в 15 см от дверного косяка. Иногда общий кухонный выключатель выносится и в коридор. Отдельные выключатели устанавливаются для дополнительного освещения в рабочей зоне. Может использоваться специальная угловая розетка.
Электрощиток и распределительная коробка
Эти устройства необходимы на современной загруженной электротехникой кухне для обеспечения безопасности и удобства эксплуатации электросети. Электрощиток позволяет управлять подключением/отключением электропитания розеток и выключателей на кухне. Коробка позволяет разделить сеть на ветки проводов для подключения бытовой техники, общего и местного освещения.
Подготовительные работы
Перед началом укладки проводки нужно составить план процесса. На подготовительном этапе:
- очищают помещение;
- удаляют облицовочные материалы;
- оценивают состояние имеющейся проводки;
- рассчитывают предполагаемую нагрузку на сеть;
- составляют схему электропроводки;
- рассчитывают нужное количество материалов.
Проверка старой проводки
На первом этапе определяют, в каком состоянии находятся имеющиеся в кухне кабели. В домах прокладывают 1- или 3-фазные сети. Необходимо уточнить это. Затем проверяют присутствие заземляющего контура. При наличии 3-жильного кабеля он имеется. Это же относится к многоквартирным домам, построенным после 1997 г. Также замеряют сечение жил провода. Значение учитывают при вычислении допустимой нагрузки.
Расчет суммарной токовой нагрузки
На этом этапе составляют список всех приборов, которые будут использоваться в кухне. С учетом содержащихся в технических паспортах данных можно сделать расчет суммарной мощности устройств. Полученное число является предполагаемой нагрузкой на проводку. К значению добавляют небольшой запас, что исключает возникновение аварийных ситуаций.
Расчет количества проводов
Существует 2 способа вычисления требуемой длины кабелей. Можно выполнить замеры в соответствии со схемой разводки. Учитывают углы, ниши, выступы, места расположения розеток и выключателей. К полученному значению добавляют 15%.
Подбор сечения кабеля
Расчет этого параметра основывается на информации, полученной при вычислении суммарной нагрузки на сеть. Сечение выбирают с помощью специальных таблиц. К указанному значению прибавляют 10%. Возможно использование кабелей с медными или алюминиевыми жилами. Первые считаются более надежными, однако из-за высокой стоимости применяются реже.
Инструменты и материалы
Помимо кабелей, для формирования электросети потребуются:
- Розетки с заземлением. Для подключения мощных приборов используют элементы с номинальным током 32 А. Для питания более слабых устройств подходят розетки на 16 А. Мощные потребители подключаются через одиночные элементы.
- Выключатели, к выбору которых особые требования не предъявляются. Предпочтение отдают изделиям с гладкими клавишами без рельефа или узоров.
Перед началом работы подготавливают такие инструменты:
- штраборез (при скрытом монтаже кабелей);
- перфоратор;
- вольтметр;
- паяльник;
- пассатижи;
- отвертки с разными насадками;
- молоток.
Чертеж схемы электропроводки
На заключительном этапе на бумаге отмечают места пролегания проводов, расположения выключателей и розеток. При этом учитывают рекомендуемую высоту элементов. Для построения схемы можно использовать специальную программу.
Прокладка электропроводки

Штробление стен под проводку
Чтобы правильно провести электромонтаж на кухне, следует покрыть стены предварительной разметкой в соответствии со схемой из проекта. Далее, следуя рисунку, аккуратно проделать в стенах штробы, в которые будут укладываться провода, предусматривая, что в дальнейшем они будут маскироваться финишной отделкой
При этом важно помнить, что при необходимости повернуть инструмент нужно крутить его строго на 90 градусов
Подготавливаются гнезда, в которые будут устанавливаться подрозетники и встраиваемые розетки, а во все проделанные каналы укладываются кабели. Чтобы зафиксировать кабель, через каждые 30 см рекомендуется проделать в канале специальное отверстие, через которое можно будет закрепить его с помощью дюбель-скоб. Когда укладка закончена, все каналы тщательно замазываются алебастром или гипсом.
В заранее проделанные углубления устанавливаются подрозетники, из которых выводятся провода, питающие все выключатели и розетки. Не забывайте подравнять их положение, используя специальный строительный уровень, после чего надежно закрепить с помощью раствора и винтов.
Рекомендации, которых стоит придерживаться
Для того чтобы правильно поменять проводку и установить разводку, надо придерживаться некоторых правил:
- выключатель света надо монтировать у входа, на расстоянии 0,2–0,3 метра от двери, на высоте опущенной руки
- нельзя проводить электропроводку на кухне открытым способом, это может быть опасно. К тому же это может испортить внешний вид кухни
- планируйте разводку так, чтобы для включения электроприборов не нужен был удлинитель. Это ненадежный способ питания, который при больших нагрузках может расплавиться
- ни в коем случае нельзя устанавливать розетку около мойки
Лучше всего, чтобы каждому электрическому прибору был установлен свой комплект деталей, обеспечивающих безопасность. Около рабочей поверхности надо оставить пару свободных розеток, которые можно применять для мелкой техники.
Все схемы надо составлять до проведения установочных работ, это значительно облегчит ваш труд, и вы сможете поменять проводку надежно и безопасно, рассчитывая все по метрам. Чтобы работа была выполнена правильно, необходимо придерживаться порядка действий и учитывать рекомендации специалистов.
Индивидуальная схема разводки
При проектировании электропроводки на кухне надо определить, где именно должны располагаться розетки и выключатели, куда будут монтироваться светильники. Как правило, отдельно запитывают подсветку нескольких зон кухни, таких как обеденный стол, рабочая зона, раковина.

Для удобства составления схемы рисуется план расстановки мебели, стационарного оборудования.
Отдельного источника питания требуют:
- холодильники;
- посудомоечные машины;
- электроплиты или варочные поверхности;
- духовки или электрические шкафы;
- стиральные машины при их установке.
Как видите, разводка электрики на кухне предусматривает монтаж большого количества розеток и выключателей. Для этого лучше предусмотреть несколько распределительных коробок. Каждая ветка оснащается устройством защитного отключения (УЗО). Если в схеме есть только одна коробка, рекомендуется использовать трехжильный электрошнур с сечением не меньше 4 мм.
Профессионалы, разрабатывая индивидуальные схемы электроснабжения бытовой техники и осветительного оборудования, придерживаются нескольких важных правил размещения розеток:
- максимальное приближение к приборам, чтобы исключить провисание шнура;
- отдаленность от источников воды и высоких температур (раковины и плиты);
- ограничение открытого доступа детям.

При проводке на кухне кабеля в качестве защитных устройств удобнее применять современные дифференциальные автоматы. При выборе розеток учитывается их надежность, долговечность. Предпочтение отдается устройствам с керамическими и никелевыми элементами.
Подготовительные работы
Перед тем как приступить к монтажу проводки на кухне, следует определиться с предполагаемым местом размещения мебели, плиты, раковины и т. д. В дальнейшем выполняется комплекс подготовительных работ, состоящий из нескольких этапов. Далее каждый из них рассмотрим подробно.
Определение состояния действующей проводки
На первоначальном этапе понадобится определиться, в каком состоянии находится старая проводка на кухне. В квартирах (домах) может использоваться однофазная или трехфазная сеть, следует уточнить этот момент. В дальнейшем проверяется наличие контура заземления у электрической проводки. Если проложен трехжильный кабель, то он имеется. Как правило, в возведенных после 1997 года жилых сооружениях предусматривается использование заземляющего контура.

Проверка состояния электропроводки.
Также понадобится установить сечение жил кабеля, чтобы понять, какую мощность способна выдержать старая электропроводка.
Расчет необходимой мощности
После этого рассчитывают мощность суммы всех приборов. Для этого в техническом паспорте каждой единицы техники находят номинальную мощность. Все эти значения суммируются. Такой метод предполагает одновременное включение всех электроприборов. Хоть это и будет происходить крайне редко, запас мощности необходим. От электрощита на кухню всегда протягивают отдельный кабель, ведь в этом месте сосредоточено такое же количество приборов, как во всей остальной квартире.
Для расчета мощности существует формула: Р = Р общ. × К
- Р общ. – подсчитанная вами общая мощность.
- К – коэффициент спроса ≈ 0,7 (70%)
К – коэффициент спроса, который учитывает количество электроприемников и продолжительность их использования. Ввиду отсутствия точных данных, рекомендуется принять его по одноименному запросу из справочной информации.
Разводка электропроводки и контактных соединений
Размещение розеток
Схема установки розеток, выключателей и монтажа силовых линий зависит от количества и расположения планируемых электроприборов:
Для встраиваемой техники размещение розеток лучше планировать не за приборами, а сбоку их, чтобы к сети электропитания был свободный доступ.
Электрика на кухне должна быть смонтирована так, чтобы в дальнейшем использование удлинителей было полностью исключено.
Обязательной мерой безопасности для помещений повышенного влагосодержания является подключение всех токопроводящих элементов и корпусов электроприборов через контур выравнивания потенциалов к заземлению электрической проводки
Эта мера предосторожности позволит избежать возможных рисков поражения электротоком
Электрика освещения
Для современной кухни, как правило, одного светильника не достаточно. Помимо основного источника света планируется местное освещение рабочей и обеденной зоны, подсветка элементов мебельных конструкций.
Над варочной поверхностью светильники размещать не рекомендуется. В качеств подсветки для плиты, как правило, случит встроенная подсветка на вытяжке.
Особенности монтажа скрытой электропроводки
Монтаж скрытой электропроводки на кухне начинается с изготовления гнезд под электрические точки. Круглые гнезда изготовляются с помощью специальных коронок по бетону (кирпичу), долота и молотка.
Квадратное гнездо вырубается тем же долотом, но по отверстиям, пробуренным с помощью перфоратора.
Штробы в бетоне или кирпиче прорезаются с помощью электрического штробореза. Ширина канавки выбирается под диаметр и количество проводов. Существуют модели с пылесосом, чтобы не загрязнять воздух на месте работы. Если внутренние стены сложены из газобетона, ручной штроборез справится с производством каналов без пыли.
Коробки «электроточек» закрепляются в гнездах, на гипсовый или алебастровый раствор, очень быстро твердеющий. Точно таким же раствором точечно закрепляются в штробах провода, протянутые к местам подключения.
Для соединения медных проводов в распределительных коробках, по требованиям «Правил устройства электроустановок», необходимо использовать сварку или пайку проводов.
Основные сведения
Электромонтаж, как и сантехнические работы, выполняется на самых ранних этапах ремонта. В идеале, его необходимо осуществлять до начала черновой отделки. Проектировочные работы и прокладку проводов следует выполнять по определенным правилам:
- все открытые концы кабелей (скрутки, соединения клеммами и т.д.) должны быть тщательным образом заизолированы посредством соответствующих материалов;
- монтаж розеток и распределительных коробок необходимо проводить в легкодоступном месте;
- прокладка проводов должна производиться по строго вертикальным и горизонтальным линиям;
- выключатели и розетки необходимо располагать не ближе, чем 500 мм от металлического оборудования, водопровода и газопровода.

Правильная разводка на кухне предполагает скрытие проводов в заранее подготовленные для этого каналы в стене. Открытое их размещение недопустимо, этого требуют правила пожарной безопасности. Именно поэтому любые идеи «пропустить» провода, например, по полу, поверх кухонного гарнитура или внутри шкафчиков должны быть отброшены.
Розетки и выключатели на кухне: оптимальные варианты
На сегодняшний день, современный рынок, способен предоставить потребителю огромный выбор всевозможных розеток, выключателей, которые отличаются дизайном, расцветкой, предназначением и материалом. Многие производители предлагают отдельные варианты, предназначенные именно для кухонных интерьеров.
Внешний вид помещения, а так же его функциональность всецело зависят от удачного монтажа, правильного размещения, и при этом внешнего вида такого элемента, как розетка.

Различные решения для кухонного интерьера:
- Встраиваемые варианты розеток, которые монтируются внутри самой стены;
- Накладные модели;
- Скрытые розетки, их обычно прячут в ящиках, столешницах, шкафах, тумбах;
- Угловые модные модели, некоторые из них оснащены специальным выталкивателем вилки.
Встраиваемую модель обычно применяют для мощной техники, так как она имеет заземление. К такой интересной модели необходимо предоставлять свободный доступ. Накладные розетки для кухни, как правило, выбирают очень редко, так как их безопасность вызывает у многих потребителей сомнения. Скрытый вариант используется в основном только, как дополнительная точка. Модным и стильным решением в мире розеток является угловая модель. Их расположение обычно приходиться на угол между столешницей и стеной или же двумя стенами. Такое решение очень гармонично и эффектно будет смотреться на любой кухне.
Особенности обеспечения кухни электричеством
Наличие бытовых приборов с большой мощностью (чайник, варочная панель, кондиционер, вытяжка, посудомоечная машина) делает кухню помещением, которое отличается максимальным потреблением электрической энергии. По этой причине нельзя обойтись в комнате только 2-3 розетками и одним выключателем.
Схема электропроводки на кухне, которая предполагает монтаж лишь одной распределительной коробки, зачастую бывает малоэффективной. Она не справится с нагрузкой при включении всех кухонных приборов.
Для качественного функционирования проводки необходимо придерживаться следующих правил:
- Электрические приборы, которые имеют большую мощность, снабжаются отдельной линией и своим автоматом.
- Для осветительных приборов и розеток тянутся разные линии. Каждая ветвь должна быть оборудована отдельным устройством защитного отключения.
- Обязательное заземление розеток. Благодаря этому увеличивается срок эксплуатации сети и кухоннойтехники.
- При креплении только одной распределительной коробки (обычно это происходит в небольшой кухне) используется трехжильный кабель с сечением 4 мм².
На подготовительной стадии проводится расчет суммарной мощности всех приборов и составляется конкретная схема монтажа проводов. На основании этих данных и определяется, прокладка какого типа кабеля будет осуществляться.
При выборе кабеля учитывают мощность каждого прибора. Несмотря на это, лучше всего укладывать трехжильную проводку на кухне. При наличии теплого электрического пола схема разводки может выглядеть следующим образом:
- ветка для люстры и галогеновой подсветки возле мойки или варочной плиты;
- линия на теплый пол;
- ветка для приборов с небольшой мощностью (микроволновая печь, миксер, тостер, кухонный комбайн);
- отдельные линии для мощной техники (духовка, посудомоечная машина, варочная панель);
- ветка для двойной розетки (для вытяжки и холодильника).
Для качественной укладки проводки на кухне своими руками нам потребуются:
- кабель;
- распределительная коробка (или щит);
- розетки с подрозетниками и выключатели;
- УЗО;
- клеммники;
- алебастр и шпатель;
- гофрированные трубки;
- изолента;
- крепежи (саморезы, дюбель-гвозди и скобы);
- отвертки, пассатижи, бокорезы, нож;
- перфоратор;
- болгарка;
- индикатор;
- уровень;
- молоток и зубило.
Составление схем электропроводки в частных домах: нюансы выполнения работ
Если к частному дому подведено напряжение 220 В, то никакой разницы в схемах с квартирными, не будет. Исключение составляют лишь трёхфазные системы. И то, отличаться будет лишь разводка в распределительном вводном шкафу. В остальном, при отсутствии в доме бойлера и (или) электроплиты, требующей напряжения 380 В, всё будет одинаковым.
Количество входящих фаз и их распределение
При условии, что со столба на распределительный щит приходит четырёхжильный кабель (380 В), следует понять, как правильно его разделить по группам. Практически каждому домашнему мастеру, который сталкивался с электромонтажом, известно, что при использовании нуля и одной из трёх фаз кабеля с напряжением 380 В получается 220 В. Основная задача данного этапа работ – это равномерное распределение фазных проводов по линиям так, чтобы избежать перекоса и обеспечить работоспособность сети на должном уровне. Существует старая поговорка – не стоит класть все яйца в одну корзину. Применима она и здесь. Если освещение дома разбито на линии, не нужно их коммутировать на одну фазу. Лучше распределить. То же касается и линий силовой группы.
Примеры схем для выполнения работ по электромонтажу
Как и в квартире, проводка от щитка своими руками – это не слишком сложный процесс, для выполнения которого требуется лишь знание некоторых правил и чёткое соблюдение инструкций. Предлагаем ознакомиться с готовыми схемами электропроводки в частном доме. Примеры схем электромонтажа для частных домов:
Особенности обеспечения кухни электричеством
Наличие бытовых приборов с большой мощностью (чайник, варочная панель, кондиционер, вытяжка, посудомоечная машина) делает кухню помещением, которое отличается максимальным потреблением электрической энергии. По этой причине нельзя обойтись в комнате только 2-3 розетками и одним выключателем.
Схема электропроводки на кухне, которая предполагает монтаж лишь одной распределительной коробки, зачастую бывает малоэффективной. Она не справится с нагрузкой при включении всех кухонных приборов.

Для качественного функционирования проводки необходимо придерживаться следующих правил:
- Электрические приборы, которые имеют большую мощность, снабжаются отдельной линией и своим автоматом.
- Для осветительных приборов и розеток тянутся разные линии. Каждая ветвь должна быть оборудована отдельным устройством защитного отключения.
- Обязательное заземление розеток. Благодаря этому увеличивается срок эксплуатации сети и кухоннойтехники.
- При креплении только одной распределительной коробки (обычно это происходит в небольшой кухне) используется трехжильный кабель с сечением 4 мм².
На подготовительной стадии проводится расчет суммарной мощности всех приборов и составляется конкретная схема монтажа проводов. На основании этих данных и определяется, прокладка какого типа кабеля будет осуществляться.

При выборе кабеля учитывают мощность каждого прибора. Несмотря на это, лучше всего укладывать трехжильную проводку на кухне. При наличии теплого электрического пола схема разводки может выглядеть следующим образом:
- ветка для люстры и галогеновой подсветки возле мойки или варочной плиты;
- линия на теплый пол;
- ветка для приборов с небольшой мощностью (микроволновая печь, миксер, тостер, кухонный комбайн);
- отдельные линии для мощной техники (духовка, посудомоечная машина, варочная панель);
- ветка для двойной розетки (для вытяжки и холодильника).
Для качественной укладки проводки на кухне своими руками нам потребуются:
- кабель;
- распределительная коробка (или щит);
- розетки с подрозетниками и выключатели;
- УЗО;
- клеммники;
- алебастр и шпатель;
- гофрированные трубки;
- изолента;
- крепежи (саморезы, дюбель-гвозди и скобы);
- отвертки, пассатижи, бокорезы, нож;
- перфоратор;
- болгарка;
- индикатор;
- уровень;
- молоток и зубило.
Подготовка к укладке проводов
1 Как только будет готова подробная схема электропроводки, можно переходить к этапу «штробления» стен. Выполненные работы позволят спрятать провода и качественно подготовить поверхность к покраске или оклейке обоев. Необходимо отметить, что соответствующий момент требует наличия специального инструмента — перфоратора, штробореза или болгарки, особенно если речь идет о железобетонных панелях или монолитных конструкциях. Предпочтительны варианты, когда провода будут прятаться под натяжной потолок, однако полностью без штробления обойтись не удастся.

2 Необходимо вооружиться схемой проводки, после чего перенести на реальные стены места прокладки кабелей. Желательно выбирать оптимальные варианты с минимальной длиной штроб. В идеале прокладка проводов должна быть строго по вертикали (если это касается стен), а также горизонтали (если проводка буде по потолку). Необходимо все углы поворотов кабеля выполнять под 90 градусов.
3 После разметки следует переходить к выполнению канавок. Глубина штробы должна быть от 10 до 20 мм, ширина — 10–30 мм, в зависимости от типа и количества укладываемых кабелей. Углубления под монтажные коробочки необходимо выполнять специальными насадками, коронками (чаще диаметром 68–70 мм). Кирпичные стены легко обрабатываются инструментом с победитовыми наконечниками, железобетон — алмазным инструментом. Закладывая блок розеток или выключателей, необходимо выдерживать правильное межосевое расстояние 71 мм, в противном случае смонтировать электрическую фурнитуру должным образом однозначно не удастся.

Разметку монтажных коробочек и проводов лучше делать с использованием лазерного нивелира.
Зачем знать параметры провода
Стандартные электророзетки рассчитаны на длительный ток в 16 А, что соответствует максимальной мощности включенного прибора 3,52 кВт. Обычно к ним подводиться медный кабель с сечением 2,5 мм2, что может ввести в заблуждение при выборе типа провода для всей остальной электроразводки.

Параллельно увеличению площади поперечного сечения кабеля возрастает и его цена. Однако экономить на электропроводке не стоит – это может привести к гораздо большим финансовым затратам в будущем
При движении электронов по металлу часть энергии рассеивается в виде тепла. При большом токе и небольшом сечении кабеля тепловой компонент может привести к перегреву металла и оплавлению его оболочки.
В бытовых условиях это может инициировать как внутристенное короткое замыкание, так и возгорание открытых проводов, особенно в местах перегибов.
В результате могут возникнуть следующие ситуации:
- Масштабный пожар, если рядом с кабелем находится легковоспламеняющийся материал.
- Утечка тока при неполном оплавлении оболочки жилы. Это ведет к бессмысленному расходу электроэнергии и вероятности поражения жильцов электрическим током.
- Незаметный разрыв провода в стене. В результате обесточивается часть квартиры или все помещение. После этого требуется поиск места разрыва и последующая замена проводки с локальным ремонтом стены.
Выбор толстого электропровода для квартиры, с запасом, также имеет один минус – перерасход финансовых средств, который не имеет смысла. Поэтому выбор сечения проводки лучше производить с помощью расчетных методов, чтобы избежать всех вышеуказанных проблем.
Типовые схемы разводки электропроводки
При разработке проектной документации электропроводки для частного дома проектировщики рекомендуют пользоваться типовыми схемами разводки проводки для разного типа помещений. Все эти схемы имеют одинаковую структуру, в основу которой положено деление разводки на ряд контуров, с подключением каждого из них к отдельному автомату.
Схема разводки проводов на кухне
Особенность разводки электропроводов в помещении кухни отличается наличием большого количества достаточно мощных электроприборов, для которых целесообразно выделить отдельные линии со своими защитными автоматами. Основная задача проектировщика в данном случае заключается в оптимальном расположении розеток — их надо разместить рядом с электроприборами, предусмотрев возможность свободного доступа к ним для ремонта или для перестановки/отключения бытовой техники. При этом на схеме нужно отобразить не только места расположения электроприборов, но и расстановку кухонной мебели.
Схема проводки в гараже/подвале
Приступая к разработке схемы разводки проводов в гараже, нужно определить количество розеток, выключателей и розеток и уточнить места их расположения. Например, розетки лучше устанавливать на высоте 1 м, а выключатели — на высоте 1,5 м от уровня пола. Распределительные коробки обычно размещают под потолком на расстоянии не более 20 см от него. Достаточно часто гараж используется владельцем еще и как мастерская. Поэтому при разводке проводов необходимо предусмотреть возможность подключения электроинструмента, компрессора или даже металло- или деревообрабатывающих станков. Возможно это только при наличии трехфазной электросети. В зависимости от того, какая сеть заведена в гараж, зависит и схема разводки проводов. При этом на распределительном щите должны быть установлены автоматы на каждую группу проводов и УЗО.
Общая план-схема электропроводки в доме
В некоторых случаях до того как будет составлена схема разводки электропроводки, рекомендуется разработать предварительную схему с перечислением всех устройств, предполагаемых к установке в доме. Такая схема облегчит подсчет общего количества линий, подводимых к распределительному щиту и общего числа защитных автоматов и УЗО. На ней также указывают тип питающей электросети, что позволяет выбрать подходящий кабель, тип устройства защиты и модель электросчетчика.
В пояснительной записке к плану указывают, что устройство ввода и электросчетчик устанавливаются на одной из наружных стен дома, а общий распределительный электрощит размещается в коридоре или в каком-либо отдельном помещении, например, в рядом стоящем гараже. Чтобы не создавать потом себе трудностей в обслуживании, в домах, имеющих 2 или 3 этажа рекомендуется предусмотреть на каждом из них промежуточные распределительные электрощитки, соединенные с общим распредщитом.
Аналогичным образом разрабатывается и план-схема электрики для небольшого одноэтажного дома.
Монтажная схема
На основании предварительно составленных план-схем можно разработать общую монтажную схему разводки электропроводки, пользуясь которой, легко рассчитать необходимое количество выключателей и розеток и дополнительной комплектации и материалов, а также метраж кабельно-проводниковой продукции.
Разрабатывают монтажную схему пользуясь копией плана дома, на которой указывают:
- точку ввода силовой линии;
- места установки электрощита, распределительных коробок, электроприборов, розеток, выключателей и осветительных ламп.
Ввод силовой линии в дом Если в проекте частного дома предусмотрены отдельно стоящие хозяйственные постройки, разводку проводов в них также нужно отобразить на монтажной схеме.
Чтобы облегчить процедуру подсчета необходимого количества кабелей и проводов, соединительные линии каждого контура лучше рисовать разным цветом.
Также рекомендуется токопроводящие жилы одного сечения обозначать на плане одним цветом. Это упростит определение номенклатуры необходимой кабельно-проводниковой продукции и упростит процес ее прокладки.
Виды проводки
Прокладка электропроводки осуществляется скрытым или открытым способом, каждый из которого отличается определенными особенностями. При выборе подходящего варианта учитывается запланированный дизайн, материал самого помещения и другие факторы.
Открытая проводка
Является наиболее простым и доступным способом обеспечить помещению необходимую электроэнергию. Выполняется достаточно быстро и не нуждается в дополнительных усилиях. Чтобы проложить провода не придется демонтировать внутренний декор или определенные его фрагменты, а при возгорании или коротком замыкании проблема решается быстро, без длительных поисков неисправности.

Необходимую безопасность обеспечивают специальные поливинилхлоридные кабель-каналы, обладающие пластичностью и высокими электроизоляционными свойствами. Благодаря богатой цветовой гамме, легко сочетаются с различной отделкой интерьера. Производители гарантируют, что материал будет обеспечивать защиту провода на протяжении 25 лет.
Скрытая проводка
Этот способ предусматривает монтаж кабеля внутри потолка или стены. Провода прокладывают в специальные борозды, пробитые для этой цели в перекрытии или несущей конструкции. Обеспечивая достойную безопасность, данный вид проводки позволяет создавать наиболее сложные интерьеры. Неприятным моментом является то, что для обнаружения неисправности, приходится пробивать стены, повреждая отделку.





































