Виды обвязки
Автоматическая система обвязки
Работа любой обвязки основана на одном принципе, а значит, они имеют практически одинаковую конструкцию.
Автоматический слив перелив для ванны отличает конструкция пробки, которой оснащено отверстие выпуска. Нажатие на нее приводит к либо к открытию сливного отверстия, либо к закрытию. Такая конструкция (клик — клак) позволяет принимать ванну, просто регулируя уровень воды – при повышении ее уровня ногой открывая пробку и спуская необходимое количество.
Имеет автоматическая система и свои недостатки – если выбирать ее не по принципу качества, а наиболее низкой цены, велика вероятность выхода автоматической пробки из строя. При этом, менять придется весь слив перелив для ванны.
Из материалов изготовления такой системы лучше выбрать бронзу или латунь, так как, например, полипропилен быстро потребует замены.
Сифон для ванны — автомат и полуавтомат
Полуавтоматическая система обвязки
Полуавтоматический слив перелив для ванны имеет схожую с автоматическим конструкцию. Но для спуска воды в нем используется не пробка, а специальный соединительный тросик.
Особенность таких систем в том, что спуск воды осуществляется посредством поворота крышки отверстия, расположенное не на дне, а на стенке ванной. Крышка соединительным тросиком объединена с пробкой и при повороте перекрывает или открывает слив воды.
Конструкция этой крышки может быть разной – рукоятка, вентиль, рычажок и т.д., в зависимости от дизайна всего устройства.
Удобство и практичность полуавтомата заключается в том, что при его использовании нет необходимости опускать руки в воду для осуществления слива воды.
Излив для ванны с системой слив-перелив-налив
Излив для ванны, входящий в систему слив перелив – это достаточно редко используемый вариант, но, при этом в некоторых случаях удобный.
Излив для ванны используется, когда нет возможности или желания установить обычный смеситель. Труба при этом подводится напрямую к отверстию перелива, через которое и поступает вода. То есть работа производится в двух режимах – наполнения и слива.
система слив-перелив-налив
Подобный излив для ванны гарантировано не допустит затопления помещения, так как при переполнении водой автоматически срабатывает слив воды на дне ванной.
Еще один вариант конструкции – когда вода подается в нижнее отверстие ванны, это позволяет набирать воду практически бесшумно.
Установить излив для ванны, и подключить его к водопроводу, самостоятельно довольно сложно, поэтому может потребоваться помощь специалиста.
Как установить обвязку для ванны?
Рассмотрим, как производится установка обвязки на ванну. Работа проходит по следующему алгоритму:
Демонтируется старая обвязка. Если она была пластиковая, то проблем со снятием обычно не бывает. Даже если раскручиваться она не желает, ее можно легко сломать и извлечь. С металлической обвязкой могут возникнуть сложности, иногда для ее извлечения приходится использовать болгарку.
- Теперь следует проверить комплектность новой обвязки, убедившись, что все прокладки и остальные элементы на месте.
- Далее необходимо отсоединить решетки от трубок слива и перелива.
- Монтировать выпуск из ванны довольно неудобно, поскольку он расположен низко, и работать приходится в крайне неудобной позе. Для облегчения задачи, можно сначала присоединить сифон с системой канализации, а затем уже ставить ванну. Но такой способ подойдет только для ванн из легких материалов. При установке чугунной ванны описанный способ монтажа лучше не применять, так как столь тяжелую модель будет сложно установить точно на нужное место с первого раза.
- С обратной стороны ванны приставляют приемную трубу, на которую следует надеть резиновую прокладку.
- Изнутри ванны устанавливают решетку, затем конструкция скрепляется при помощи стяжного болта. Данную операцию удобнее выполнять с напарником. Один будет снизу прижимать патрубок выпуска к отверстию, а второй сможет вставить горловину и закрутить ее.
- При выполнении работы не нужно прилагать больших физических усилий, иначе детали обвязки могут лопнуть, что повлечет необходимость покупки новой детали.
- Точно так же производится установка трубки перелива. Только нужно предварительно растянуть гофрированную трубку до требуемого размера, чтобы она вошла в патрубок.
- Некоторые модели обвязок комплектуются четырьмя резиновыми прокладками, в этом случае, их устанавливают и внутри ванны и с ее обратной стороны. Если прокладки в комплекте только две, то их следует установить с обратной (наружной) стороны ванны, в противном случае, придется столкнуться с проблемой протечек. Дополнительно можно использовать герметик на основе силикона.
Итак, существует несколько разновидностей систем слива/перелива для ванн. Если выбрана простая пластиковая обвязка, то ее несложно установить самостоятельно. В том случае, если приобретена обвязка для ванны полуавтомат, лучше доверить ее установку специалистам, так как монтаж такой системы намного сложнее.
Как собрать ручной сифон
В продажу конструкция поступает в демонтированном виде. В набор входят: уплотнители, различной ширины трубки, отстойник.
Для начала нужно взять отстойник и на его нижнюю часть надеть самую большую плоскую прокладку. При установке уплотнителей нельзя допускать перекосов (искривлений). Затем (при помощи шланга из гофры) необходимо состыковать отстойник с выпуском. При сборке пластиковых конструкции дополнительный уплотнитель в виде ФУМ-ленты не требуется, тогда как для металлических сливов он необходим.
Далее следует найти на боковой части отстойника два отверстия различного диаметра. Данные выходы предусмотрены для бокового слива и соединения с коллектором. Пропорционально их размерам нужно подобрать конусную широкую прокладку и накидные гайки.
После этого берется штуцер, который будет подключаться к центральному сливу. На него устанавливается накидная гайка. Выбирается уплотнитель (острый его конец устанавливается к патрубку, а тупой в дальнейшем подсоединяется к отстойнику). Располагать прокладки необходимо максимально плотно, не допуская при этом их разрыва.
По завершении описанных действий в сифон вставляется патрубок, который позднее (при помощи гофры) пристраивается к канализационной сети.
После сборки слива можно приступать к его монтажу. В наборе не должно оставаться лишних частей. Все составляющие необходимо использовать по назначению. Для увеличения герметичности соединений нельзя применять несколько прокладок. Для каждого стыка используется только 1 уплотнитель.
Для предотвращения протечки желательно регулярно проверять соединения, при необходимости проводить замену.
Автоматическое устройство слива
Если позволяет бюджет, можно купить дорогую автоматическую модель. Выгодным будет и приобретение недорогой стандартной модели. Цены на автоматические конструкции составляют 20-55 $. Отличительная особенность автоматического механизма связана с наличием специального клапана. После его нажатия пробка автоматически закрывает отверстие слива в резервуаре.
Слив — автомат
Предусмотренный фиксатор клапана позволяет сохранить его положение. Для слива воды потребуется сделать нажатие на кнопку. Автоматическое опускание и поднятие клапана происходит в результате сжатия пружины. Система автоматического слива имеет следующие основные особенности:
- Управление сливом осуществляется ногами.
- Видимая часть обладает компактным размером.
- Наличие большого ассортимента кнопок.
Система автоматического водоотведения зачастую применяется для оборудования ванночек для детей. В результате емкость с водой не потребуется переворачивать для слива воды вручную. Основной недостаток автоматического устройства слива-перелива для ванной заключается в сложности замены кнопки.
Разновидности и принцип действия оборудования
Оборудование необходимо для отведения использованной жидкости. Благодаря устройству ванна не переполняется при неконтролируемой подаче жидкости. Конструкция предусматривает наличие 2 отверстий — в стенке и на самом дне. К ним подсоединяются шланги, которые также подключены к канализации.
Прежде чем выбрать слив-перелив, нужно рассмотреть достоинства и недостатки всех типов.
Особенности механических устройств
Механические устройства считаются самым простым типом конструкции. Они встречаются часто, хотя стали уступать позиции более совершенным моделям. Особенность механических устройств в том, что отсутствуют рычаги, подвижные детали. Набор воды происходит при закрывании пробки, а при открывании жидкость спускается.
Преимуществом изделий является надежность. Механизм такого типа редко ломается, а служит долго. Сливное отверстие закрывается пробкой вручную. Последняя крепится цепочкой к решетке слива, что облегчает ее извлечение из отверстия.
Полуавтоматический слив-перелив с хромированной рукояткой для управления, хромированной пробкой и сливной решёткой.
Конструкция устройства выглядит следующим образом:
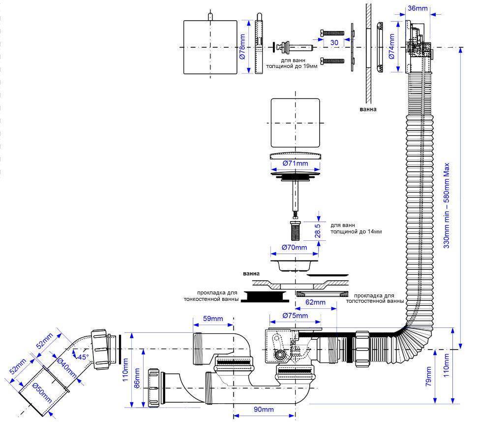
- Сифон. Это дугообразный патрубок съемного типа, который играет роль гидрозатвора. Он нужен, чтобы неприятные запахи из канализации не попадали в ванную комнату. Связывает все механизмы друг с другом, отвечает за соединение с канализацией.
- Соединительная трубка (гофрированная). Служит для отведения воды, которая поступает в перелив к сифону.
- Дополнительный патрубок. Может быть как мягким, так и жестким. Отвечает за слив воды.
- Сливная горловина. Ее фиксируют в отверстии, расположенном в днище. Представляет собой хромированную стальную воронку, помогающую задерживать крупные частицы загрязнений. Она установлена на расширяющийся патрубок, оснащенный встроенной гайкой. Стыковка деталей осуществляется через усиленный металлический винт. За водонепроницаемость устройства отвечает резиновая прокладка.
- Переливная горловина. Это та часть изделия, которая вставляется в стенку ванной. Принцип конструкции такой же, как у слива, разница в способе ее установки.
В комплектации имеются также соединительные элементы, которые нужны для повышения герметичности. Например, плоский или конусообразный тип прокладок. Их применяют вместе с накидной гайкой.
Кроме надежности и долговечности, преимущества механических систем для ванной — невысокая стоимость, простая сборка. Но есть недостатки, например быстрый износ уплотнителя.
Характерные черты полуавтоматических приборов
Полуавтомат считается усовершенствованной модификацией механической конструкции. Количество элементов в этой системе намного большее. Помимо традиционных компонентов предусмотрен блок управления, который отвечает за поднятие и опускание пробки. Система оснащена тросом, затворным клапаном. Последний открывается или закрывается в зависимости от положения перекрывающего штока.
Блок управления состоит из нескольких деталей. Он оснащен вентилем, рукояткой, поворотным кольцом, кнопкой. Чтобы запустить систему, нужно повернуть рычаг, а в некоторых моделях — нажать на элемент в виде кнопки.
Преимущества полуавтоматических типов:
- привлекательное оформление;
- удобный способ закрытия слива — не нужно нагибаться, мочить руки;
- комфортные для пользователя установка, управление и ремонт.
Но стоят такие системы дороже, чем механические.
Чем хороши автоматические сливы-переливы
Автомат — дорогая разновидность. Он отличается сложным строением. Здесь есть кнопка-клапан «клик-клак», которая снабжена фиксатором, встроенной пружиной. Как и в полуавтоматических системах, на кнопку нажимают вручную. Тогда пробка опускается, сливное отверстие закрывается. Если повторить манипуляцию, то отверстие откроется.
Кнопки такого типа оформлены в разных стилях. Самым популярным вариантом считается металл. Часто применяются латунные и медные сплавы с никелевым или хромированным покрытием.
Достоинства автоматов:
- привлекательный внешний вид;
- эргономичность с заботой о комфорте пользователя;
- удобный спуск воды;
- компактность.
Основным недостатком является высокая стоимость. Кроме того, подсоединить такой слив-перелив самостоятельно сложно, здесь нужна помощь специалистов. Трудности могут возникнуть при замене кнопки. Для таких систем характерна уязвимость пружины клапана.
Слив-перелив из полипропилена отличается демократичной ценой, прочностью и долговечность элементов.
Итак, как же устроен слив перелив для ванны ?
Не зная, как устроен слив в ванной, вы не сможете решить некоторые бытовые ситуации такие, к примеру, как плохо уходящая вода из ванны или неприятный запах.
Наверняка все знают, что в ванной есть два отверстия – верхнее и нижнее. Нижнее – сливное, а верхнее – переливное. Поэтому их так и называют слив-перелив.
Устройство перелива для ванны на самом деле достаточно простое
Изделие можно разделить на 4 части (если брать во внимание дополнительные соединительные элементы, то может получиться больше частей), которые не имеют особого значения, кроме как удобство подключения и сборки
- Сливная горловина – она располагается на дне ванны и состоит из 2 частей. Нижняя ее часть представляет собой патрубок с расширением и встроенной гайкой. Верхняя часть изготовлена в форме хромированной чашки. Эти детали располагают сверху и снизу ванны и между собой соединяют длинным металлическим винтом. У такого крепления герметичность достигается особой уплотнительной прокладкой.
- Переливная горловина – в принципе она имеет такое же устройство, что и сливная. Разница лишь в том, что отвод для воды у нее не прямой, а боковой. Она предназначена для того, чтоб удалять излишки воды из ванны, если вдруг ванна неконтролируемо переполнится. Но не стоит рассчитывать на переливное отверстие на 100%. Переливная труба имеет небольшой размер и при большом напоре воды она может не справиться.
- Сифон – может быть выполнен в разной конфигурации, однако почти всегда он представляет собой съемный изогнутый патрубок, в котором всегда остается вода. Это как раз и есть тот водный затвор, который препятствует попаданию неприятного запаха канализации. Здесь стоит отметить один важный фактор – большое значение имеет объем водного затвора. Если вентиляция канализационного стояка плохо работает, то эта вода (к тому же если ее мало) может быть высосана из сифона, в этом случае невероятное зловоние вам обеспечено. Лучше выбрать сифон с более глубоким водным затвором, в котором поместится не меньше, чем 300-400 мл жидкости.
- Гофрированный шланг для соединения – применяется для отведения воды в сифон от перелива. На этом участке давление воды относительно невысокое, поэтому чаще всего этот шланг натягивается на специальные патрубки (ершики) без обжимов. В более серьезных сифонах подобного типа соединение перелива и шланга герметизируется прокладкой и обжимной гайкой.
- Патрубок для соединения сифона с канализацией – он может быть 2 видов: гофрированный и жесткий. Первый удобнее подключать, однако второй – более надежный. Помимо этого, преимуществом гофрированного патрубка является длина, которую можно отрегулировать согласно вашим потребностям.
Разберем более подробно слив перелив для ванны
Мы перечислили все части, на которые можно разделить практически все сливы переливы для ванны, предлагаемые сегодня. Единственное, что дополнительно нужно знать для того, чтобы собрать слив перелив для ванной – это о способах соединения отдельных частей. Крепление бывает 2 типов: с плоской уплотнительной прокладкой и с конусной. В обоих случаях для крепления частей слива используется накидная гайка.
Если говорить о конусных прокладках, то они монтируются острым краем от гайки. Тонкая часть должна зайти внутрь противоположной детали, но не наоборот. Если наоборот, то начнутся течи, придется использовать силикон, и в конце концов все закончится вызовом сантехника и придется дополнительно платить деньги. К сожалению, такие ситуации происходят довольно часто.
Теперь давайте разберем разновидности сливных сифонов для ванны. Их не очень много. Если не учитывать некоторое конструктивные и технологические особенности, то сифоны можно разделить на обычный с пробкой и слив-перелив автомат. Они отличаются системой открывания пробки, которая заключается в повороте рычага на переливе. Эта система позволяет доставать пробку из слива ванной, не нагибаясь к ней. Вам будет достаточно лишь повернуть круглый рычаг, который расположен сверху ванны. Что касается простых сливов, то они могут разниться формой патрубков (форма может быть круглой либо прямоугольной), способом крепления к канализации (жесткий патрубок либо гофра) и типом герметизации крепления (прямые или конусные прокладки).
Популярные производители сливных систем
Среди компаний, в ассортименте которых есть линейки различных видов сантехнических изделий, можно выделить следующие:
- Анипласт – известная российская компания, продукция которой хорошего качества и по доступным ценам;
- Alkaplast – чешская компания, которая производит дешевые сифоны с автоматическим подъемом сливной пробки;
- Hansgrohe – известный немецкий бренд, производящий качественную и дорогую сантехнику, в том числе трубопроводную;
- Jimten – испанский производитель, специализирующийся на изделиях из пластика. Продукция отличается отличными эксплуатационными характеристиками и привлекательным дизайном.
В специализированных магазинах можно найти товары других компаний, как отечественных, так и зарубежных.
Как правильно установить сифон
Теперь давайте рассмотрим тонкости и принцип установки сливного сифона.
В принципе, если вы будете следовать инструкции по сборке, обычно предлагаемой компаниями-производителями этих устройств, то у вас все должно получиться в лучшем виде. Но довольно-таки часто люди сталкиваются с множеством проблем. У некоторых из нас техническое мышление, у некоторых – экономическое, а есть люди – гуманитарии. Так вот, как простой сифон, так и сифон-полуавтомат собираются почти одинаково. Давайте рассмотрим весть процесс от начала до конца по пунктам, чтобы всем было понятней, как это осуществить.
Если мы говорим о замене старого сифона на новый, то необходимо удалить старый сифон и тщательно очистить места крепления сифона с ванной (ничего не должно мешать прокладкам выполнять свои функции).
Берете нижний перелив, вкладываете в него прокладку и приставляете снизу к сливному отверстию. Тем временем свободной рукой накладываете верхнюю накладку на отверстие, вставляете в нее винт и наживляете его. Затем придерживаете нижнюю часть переливной горловины одной рукой, а второй рукой – туго затягиваете винт с помощью отвертки
Здесь важно не переусердствовать – пластиковый корпус горловины может лопнуть. Вы всегда сможете затянуть сильнее винт, в случае появления небольшой протечки.
Аналогично монтируете и верхнюю переливную горловину
Патрубок, который обеспечивает отвод лишней воды, лучше направьте не вертикально вниз, а слегка в сторону, поближе к себе. Так вам будет удобней выполнить его крепление со сливной горловиной.
Соединяем перелив и слив при помощи гофрированного шланга. Мы не рекомендуем укорачивать и резать его, вам необходимо лишь плавно его изогнуть. Если для герметизации этих креплений предлагается гайка, то не забудьте о том, что прокладка располагается к переливной и сливной горловине тонким концом. Сперва на гофру одевается гайка, а затем прокладка.
Под ванной к сливной горловине присоединяем водный затвор. Здесь можно добавить лишь одно уточнение: перед тем, как выполнять соединение, следует осмотреть места крепления прокладок на предмет дефектов литья и заусенцев. Срежьте ножом или спилите напильником все, что может помешать качественной герметизации. Во всех моделях сифонов без исключений, включая сифон-автомат, водный затвор крепится к горловине при помощи накидной гайки с конусной либо плоской прокладкой.
Присоедините патрубок или гофру к водному затвору для подключения устройства к канализации так, как вы делали это в предыдущем пункте.
Присоединяем сифон к канализационной системе. Тут стоит заметить, что в некоторых устройствах подобного типа подключение может быть осуществлено напрямую в раструб пластиковых труб, а в некоторых – при помощи уплотнительного манжета. Если мы говорим о чугунной старой канализации, то в любом случае вам не обойтись без манжета.
На данном этапе необходимо проверить качество собственной сборки. Открываете воду и наполняете ванну. Если течь не появится при закрытой пробке, то это означает, что вы правильно собрали горловину.
Варианты конструктивных решений обвязок
Классифицируют обвязки для ванны по двум признакам: по конструктивному решению и материалу изготовления. Если за основу брать конструктивные различия, то выделяют: универсальные, полуавтоматические и автоматические системы.
Универсальная
Самый простой вариант обвязки часто применяется при подключении и монтаже ванн любых типов: акриловых, стальных, чугунных.
Главное требование для установки универсальной системы – чтобы расстояние от центра перелива до сливного отверстия составляло не более 57,5 см
Основными элементами системы выступают:
- Сливная горловина. Ее укомплектовывают металлической накладкой, предназначенной для установки крышки.
- Переливная горловина. Она имеет такого же исполнения накладку.
- Сифон. Элемент, обеспечивающий сток воды и препятствующий распространению «ароматов» канализации. Он может иметь разборной или монолитный корпус.
- Гофрированный шланг. Он предназначен для соединения сливной и переливной горловины и монтируется посредством натягивания на штуцер или затягивания накидных гаек.
Наружная часть перелива оформлена решеткой, а обратная соединяется с приемным блоком. К нему прикреплена изливная трубка, соединенная с идущим от нижнего выпуска патрубком.
Регулирование спуска воды в универсальных моделях обвязки осуществляется путем ручного извлечения пробки, привязанной на цепочке
Среди представленных видов универсальная обвязка, включающая минимум движимых элементов, считается самой надежной и долговечной.
Полуавтомат
Особенность системы в том, что она оборудована поворотным рычагом, с помощью которого перекрывают сливную горловину. Таким механизмом удобно управлять даже лежа в ванной. Нужно лишь приловчиться, научившись смещать рычаг пальцем ноги.
В основе работы обвязки для ванны полуавтомат лежит механический принцип. Устройство приводится в движение рычагом вращения или вентилем, установленным на переливной горловине сифона. Рычаг запуска по типу велосипедного переключателя скоростей связан тросиком с другим рычагом, расположенным в сливной горловине устройства.
За счет проворачивания рычага вращения в ту или иную сторону, натягивается или, напротив, ослабляется трос, под действием которого опускается или приподнимается расположенная над сливным отверстием пробка.
Главное преимущество такой системы – удобство использования: чтобы приподнять пробку и спустить воду вам не обязательно нагибаться в ванну
Потребители, установившие в своих ванных полуавтоматические системы слива, сетуют на хрупкость конструкции. Достаточно лишь чуть сильнее придавить на пластиковый рычаг, и он может сломаться.
Система автомат
Автоматические системы лишены каких-либо тросиков и хрупких элементов. Открывание сливной горловины происходит путем нажатия на пробку.
Под действием пружины, дополненной фиксатором, пробка при нажатии легко приподнимается над поверхностью, обеспечивая свободный сток воды. При повторном нажиме она опускается, закрывая собой горловину сливного отверстия.
Внешние аксессуары обвязки для ванны автомат могут быть выполнены в любом цветовом оформлении: белом, окрашенным под бронзу, золото или серебристый металл
К числу недостатков системы можно отнести лишь малые размеры отверстия, которое остается под пробкой для слива. В нем часто скапливают волосы и мелкий мусор, что затрудняет слив воды.
В изделиях невысокого качества повышенная сложность конструкции часто приводит к поломкам, отремонтировать которые не всегда удается. И устранить проблему, можно лишь полностью заменив автоматическую систему.
Чтобы обезопасить себя от непредвиденных расходов, выбирайте оборудование проверенных производителей. Оптимальный выбор – автоматические обвязки для ванны, выполненные из металла.
Советы по уходу и эксплуатации
Независимо от вида и материала системы требуют соответствующего ухода. Это позволит продлить срок эксплуатации, обеспечит эффективность и работоспособность. Нужно следить за тем, чтобы на устройствах не появились механические повреждения. Поэтому системы регулярно осматривают и проверяют на предмет наличия дефектов и обнаружения течи.
Чтобы не формировались отложения накипи, нужно не реже чем раз в 3 месяца промывать сифон горячей водой, в которую добавляют лимонную кислоту. Срок службы резиновых прокладок в таких системах составляет полгода. После изделия истончаются, теряют эластичные свойства и требуют замены. Рекомендуется регулярно прочищать водный затвор, поскольку там собираются загрязняющие частицы.
В случаях когда осмотр показывает наличие сколов и трещин, сифон меняют, поскольку исправить такие дефекты нельзя (они приведут к затоплению помещений). Знание правил установки и эксплуатации системы слива-перелива продлит срок ее службы, повысит эффективность водоснабжения.
Конструктивность устройства слива-перелива
Помимо того, что сантехника для ванны бывает металлической или пластмассовой, она отличается по конструктивности решения, применённого к данному виду. Так, например, по конструктивности выделяют универсальные, полуавтоматические и автоматические устройства.
Универсальная обвязка для ванны
Универсальный слив встречается в подавляющем большинстве квартир. Это самый простой и удобный вид обвязки, которую можно установить своими руками. И подходит он почти для всех типов ванн. Составные части, из которого состоит такое сантехническое устройства, следующие:
- выходное отверстие для слива со специальной накладкой из металла с крышкой;
- выходное отверстие для перелива с металлической накладкой;
- сифон с цельным или разборным корпусом;
- шланг в виде гофра. Установка гофры на сливе и переливе соединит их между собой;
- отводная труба, подключаемая к канализации.
Универсальная система — это хороший способ и сэкономить и упростить себе установку.
Обвязка для ванны автомат
Система этого типа мало чем отличается от универсальной. Суть отличия в конструктивных особенностях пробки. Немцы первыми ввели систему автомат в обиход. Сейчас многие фирмы производители используют эту технологию.
Принцип работы довольно-таки прост:
- Нажимаешь на кнопку и перекрываешь слив пробкой, оснащённой пружиной и фиксатором.
- Вытащив пробку, обеспечиваешь свободный уход воды. Очень удобно делать это даже ногой, нажав на кнопку.
Минусом автомата является сложная конструкция. Именно сложность и приводит к частым поломкам. Ремонту такой сантехнический прибор не подлежит — его приходится менять целиком. Поэтому, если и выбирать, то обвязку от известных производителей. Так, хоть вещь прослужит подольше.
Обвязка для ванны полуавтомат
Это устройство перелива очень похоже на автоматическое, но только принципом своей работы. Чтобы понять, как оно работает, рассмотрим составные части:
- соединительный тросик;
- пробка на горловине перелива;
- приёмник с блоком управления.
Блок управления — это профессиональный термин. На самом деле мы его знаем в виде какого-либо вентиля или пробки. Само отверстие мы не видим, потому что оно закрыто тем самым блоком управления. При повороте вентиля передается усилие через тросик на пробку. Так, в полуавтомате можно регулировать уровень слива, даже не опуская руки в воду. При желании, лёжа в ванне, можно управлять и ногой.
Очень хорошо видно на фото, что из себя представляет полуавтоматическая обвязка. Исходя из просмотренного, каждый для себя может сделать вывод сложна ли будет установка.





































