Отличия стандартных размеров ящиков
Чтобы создать оптимальные условия на кухне, подбирают подходящую мебель. Ее приобретают после снятия всех мерок. Стандартные размеры шкафов различаются в зависимости от расположения.
Нижняя мебель
Напольные шкафы считают главной частью рабочей зоны. Они должны быть вместительными и выдерживать нагрузки.
Их стандартные размеры следующие:
- общая высота — 85 см;
- высота цоколя — 10 см;
- стандартная глубина нижних кухонных шкафов должна быть не менее 46 см, для выдвижного ящика — 45 см, для больших помещений выбирают более глубокие модули от 90 до 120 см;
- глубина или ширина столешницы бывает трех размеров: 60 см, 90 см и 120 см;
- толщина столешницы — от 28 до 50 мм;
- уровень нависания столешницы с передней стороны — от 30 до 50 мм;
- уровень нависания столешницы с задней части тумбы — от 50 до 100 мм;
- ширина фасада — от 30 до 90 см, тумбы с более широким фасадам неудобны при эксплуатации;
- высота в промежутка внутренних полок — от 20 до 40 см (подбираются по желанию пользователя);
- высота пенала — от 150 до 230 см, глубина и ширина варьируются.
Для сохранения стиля и функциональности кухни рекомендуют соблюдать эти параметры
Высоту нижних шкафов регулируют с помощью ножек, но при этом важно, чтобы они смотрелись органично
Подбирая мебель, учитывают размер столешницы. Она должна быть не уже 60 см — это самый востребованный размер, обеспечивающий удобство при приготовлении пищи. Глубина шкафчика при этом составляет 46 см. Большие столешницы (от 90 см) подходят для просторных помещений, при этом глубина тумбы — 76 см. Ширина поверхности в 120 см применяется на профессиональных кухнях, либо используется для острова или обеденного стола.
Пеналы применяют под встраиваемую технику. Для микроволновой и духовой печи подходит стандартный размер 60*59 см.
Верхняя мебель
Верхние шкафы используют для хранения посуды, продуктов и мелкой бытовой техники. На ее размер и конфигурацию влияет ее функционал:
- высота верхних шкафов кухни по стандарту — от 79 до 90 см;
- глубина верхних шкафов кухни по стандарту— от 30 см, она составляет половину от глубины нижней тумбы;
- зона фартука — от 45 до 60 см (зависит от роста пользователя);
- ширина фасада — должна совпадать с шириной нижней тумбы;
- высота от пола — от 180 до 250 см.
Это оптимальные размеры, их рассчитали исходя из среднестатистической высоты потолков и среднего роста человека. Если рост выше среднего и потолки высокие, то мебель размещают в соответствии с необходимыми параметрами, исходя из удобства пользователей.
Угловая мебель
В небольших помещениях предпочтение отдают угловым гарнитурам, которые помогают рационально использовать пространство. Шкафы могут быть радиальными или пятиугольными.
Перед выбором учитывают их стандартные размеры:
- общая высота от пола и до потолка — от 180 до 250 см;
- глубина верхнего шкафа — от 30 до 40 см;
- глубина нижней тумбы — от 46 до 50 см;
- ширина фасада — от 30 до 40 см;
- толщина столешницы — от 2 до 4 см;
- размер фартука — от 45 см;
- ширина рабочей поверхности — от 46 см.
Угловые секции отличаются по формату от остальных, при этом нижние шкафы больше навесных.
Размер напольной тумбы:
- обычная или для мойки, длина по бокам — от 85 до 98 см (есть варианты с длиной 110-130 см);
- ширина стенок, примыкающих к соседним шкафам — от 50 до 60 см;
- угол тумбы бывает скошенным (47 см) и уголком (56*56 см).
У углового пенала размером от 37 до 50 см по стенке: открытая сторона — от 17 до 25 см, ширина дверцы — от 30 до 34 см.
Навесной шкаф:
- длина по бокам — от 55 до 60 см;
- ширина стенок, примыкающих к соседним полкам — от 30 до 35 см;
- ширина среза на фасаде — 38 см;
- внутренний срез (при наличии) — от 10 до 16 см;
- внутренний угол — 28*28 см, может увеличиваться в зависимости от глубины.
Профессионалы рекомендуют подбирать размер угловой конструкции под себя. При этом следует учитывать, что большая глубина такой мебели неудобна в использовании. Для доступа к содержимому модуль оборудуют выкатной корзиной — карго или вращающейся полкой.
Верхний ряд
Для навесных кухонных шкафов, составляющих верхний ряд мебели, стандартными считаются такие:
- в высоту не менее 79 и не более 90 см;
- в глубину стандартом считается 30 см, но при столешнице большего размера, глубина верхнего модуля может составлять её половину, то есть, 45 либо 60 см;
- высота верхних шкафов от их нижнего края до зоны фартука – минимум 45 см, но корректируется по росту хозяйки и для высоких дам может составлять и 55, и 60 см;
- фасады верхних модулей по ширине должны совпадать с фасадами нижнего ряда;
- вытяжка от верхних модулей должна быть расположена в 70-75 см, если плита электрическая и в 75-80, если плита газовая;
- от пола до верхнего края навесного шкафа не должна превышать 210 см.

Нестандартная мебель
Кроме стандартных параметров кухонной мебели, существуют нетипичные по размерам модели для кухни. Многим они могут показаться непривычными или неудобными в использовании. Нетипичные кухонные гарнитуры являются основой хорошо обдуманной планировки, которая на деле может оказаться намного удобней стандартной.

Проект разноуровневой мебели акцентирует внимание на облегчении нагрузки на спину. Рассмотрим несколько уровней для комфортной работы над столешницей
- Стандартная величина поверхности столешницы и раковина могут быть немного приподняты до уровня в 1 м. При процессе нарезки овощей и приготовления блюд позвоночник будет более расслаблен. К тому же показатель в 1 метр позволяет облокотиться на столешницу. Это также дает разгрузку ногам и позвоночнику.
- Если работа на кухне требует большей затраты физических сил, как, например, замес теста, то столешницу можно еще приподнять для достижения комфортного уровня.
- Высота плиты ниже столешницы. Идеальным параметром является значение в 80 см. Благодаря такой высоте более безопасно и удобно снимать с плиты массивные кастрюли или тяжелую сковороду.


Можно выбрать высоту столешницы ниже стандартного параметра. Такая мебель будет отличным вариантом для семьи с детьми. Совместное приготовление пищи будет намного удобней для ребенка и взрослого со столешницей высотой 50-60 см. Безусловно, при выборе разноуровневой мебели стоит учитывать возраст и рост ребенка.


Стандартные размеры угловых кухонных напольных шкафов
Размеры нижних угловых шкафов соответствуют параметрам общего кухонного гарнитура. При этом учитываются такие параметры, как высота и глубина плиты, габариты мойки и других встраиваемых приборов. Если речь идет о небольшой кухне, то максимальная глубина шкафа не должна превышать 50 см.

Самые распространенные габариты – это угловой шкаф 60х60 см
Высота угловой нижней конструкции соответствует общему стандарту и равна 85 см. Ножки у таких шкафов можно регулировать, как и у обычных. Ширина моделей может быть в диапазоне от 15 до 80 см. Самые распространенные габариты – это шкаф 60х60 см, довольно вместительный и удобный в пользовании. Нижнюю часть устанавливают после крепления верхней, и они обязательно должны соответствовать друг другу.
Самый распространенный вариант конструкции, монтируемой в нижнем углу, – это угловой кухонный шкаф под мойку. Размеры его могут быть разнообразными и зависят от габаритов самой раковины. Кроме того, учитывается тип самой мойки – врезная она или накладная.
Чаще всего угловые модели входят в состав гарнитуров, изготавливаемых под заказ. В таком случае параметры вычисляются самостоятельно, ширина может превышать 60 см, глубина изделия может достигать 80 см. Часто в угловом шкафу, на который устанавливают мойку, используют два фасада или одну складную дверцу.

Но многие профессионалы рекомендуют подбирать размеры угловой кухни по своему желанию, главное чтобы она была удобной
Параметры углового гарнитура
Угловые нижние и верхние тумбы, изготавливают по стандартным и индивидуальным параметрам. Оптимальные размеры угловой конструкции:
- ширина задних стенок – 0,6 метра;
- боковые детали – 0,3 метра для верхних тумб и 0,45-0,55 метра для напольных;
- ширина фасада – 0,38 метра;
- высота кухонного гарнитура от пола до столешницы примерно 0,85-0,9 метра.
Обратите внимание, что разноуровневые конструкции зачастую изготавливаются на заказ, потому в мебельных каталогах так мало вариаций на эту тему. Но вы всегда можете попросить у дизайнера показать готовые макеты проектов из портфолио, если работаете с профессионалом
Что представляют собой разноуровневые столешницы
В просторных кухнях удобно, когда различные важные участки: раковина, поверхность, предназначенная для разделки продуктов, и плита располагаются на разных уровнях. При этом мойка размещается выше примерно на 10-15 см относительно стола, а варочная панель, наоборот, на столько же ниже.
Разноуровневые столешницы
Для чего это нужно?
- На более низко расположенной плите удобнее заниматься перемешиванием готовящегося блюда и следить за процессом в высокой кастрюле.
- Более удобное положение рук и позвоночника при мытье может обеспечить небольшой подъем моечной зоны.
Конечно, при таком устройстве рабочей зоны велик риск задеть установленную на столе посуду или готовые блюда. Но, если каждый участок будет иметь большую площадь, работать будет удобнее. А защититься от неловких движений можно, установив разграничительные бортики.
Габариты подвесных шкафов
Для навесных шкафов, подвешенных над уровнем стола рекомендуемая глубина пеналов должна быть не более 300,0 миллиметров. Это позволит обеспечить свободный доступ к кухонным аксессуарам, находящимся у задней стенки. Высота обычно составляет 713,0 миллиметров.
При двухъярусном расположении кухонной мебели расстояние между верхним и нижним ярусом должно находится в пределах 450,0…650,0 миллиметров. Конечно это расстояние может быть изменено исходя из биологических особенностей человека.
Более подробно ознакомиться со стандартными требованиями к кухонной мебели, которые включают и размерные характеристики, можно в российских федеральных и отраслевых стандартах.
Стандартные размеры навесных кухонных шкафов
Высота верхних шкафов в первую очередь зависит от высоты потолков в помещении. Например, в «хрущевке» до потолка можно легко дотянуться, просто вытянув руку. Поэтому общая высота гарнитура не может превышать 215 см. В «сталинках», наоборот, трехметровые потолки предполагают установку высоких верхних модулей, допускаются даже двухрядные антресоли, которые могут спокойно вместить всю кухонную утварь. В квартирах более поздних советских построек и в современных многоэтажках параметры гарнитура возросли до 240 см.
Поэтому именно за счет размеров верхних кухонных шкафов регулируется высота всего мебельного комплекта. Таким образом, данный показатель верхних кухонных шкафов колеблется от 65 до 90 см. Иногда шкафчики могут достигать высоты 120 см, но тогда дверцы должны располагаться в два ряда.
Стандарт глубины верхних шкафов кухни составляет 30 см, хотя если в гарнитуре используется широкая столешница или предполагается установка встраиваемой техники, например, микроволновки в верхнем ряду, то эти показатели должны быть больше. В идеале глубина верхних шкафов кухни составляет половину либо 2/3 глубины нижних модулей. Ширина дверец верхних шкафов должна быть идентичной элементам, расположенным внизу гарнитура.
Для обеспечения функциональности и полноценного хранения на кухне посуды, стоит внимательно ознакомиться с правилами расчета размеров верхних модулей
Параметры высоты зоны фартука, то есть расстояние от рабочей поверхности до дна верхнего шкафа, должны составлять как минимум 45 см. Увеличение этого показателя возможно при условии высокого роста хозяйки и может достигать 60 см. На более высоком расстоянии от нижнего ряда размещается шкаф со встроенной вытяжкой. Для вытяжного шкафа, расположенного над электроплитой, этот параметр должен соответствовать 70-75 см, а для газовой плиты – 75–80 см. Максимальная высота установки верхних модулей (от пола) не должна превышать 210 см.
Параметры шкафов, устанавливающихся в нижнем ряду
При установке шкафов на кухню в нижний ряд, необходимо уточнить параметры помещения. При этом стиль оформления кухонного гарнитура также может играть значение, при условии, что шкафы будут оснащены нестандартными декоративными элементами.
Размеры, которые необходимо учитывать при разработке чертежа кухни
Однако, существуют стандартные величины, которым мы посвятили данную статью, и их же нам сейчас нужно изучить.
Таблица 1. Стандартные параметры шкафов, устанавливающихся в нижний ряд
| Параметр | Значение |
|---|---|
| Общая высота шкафа | Как правило, общая высота шкафов, устанавливающихся вниз, составляет не менее 85 сантиметров. Такой высоты достаточно для обустройства внутри мебели достаточного пространства для хранения различной посуды и прочей кухонной утвари. |
| Высота цоколя | Высота цоколя, или по-другому высота расположения шкафов, устанавливающихся в нижний ряд кухни, от полового покрытия обычно должна составлять 10 сантиметров. |
| Глубина шкафов | Глубина шкафов нашего кухонного гарнитура, а точнее его нижнего ряда, имеет стандартную величину, равную 46 сантиметрам. Так, если, например, внутрь данного шкафчика устанавливаются ящики, то: |
Однако, намного более востребованной считается глубина от 56 сантиметров до 58 сантиметров.
Ширина столешницы
Ширина столешницы, которая устанавливается на шкафы, и служит нам рабочей поверхностью, имеет три стандартизированных размера:60 сантиметров;
90 сантиметров;
100 сантиметров;
20 сантиметров.
Толщина столешницы
Толщина устанавливаемой столешницы также может быть представлена несколькими стандартными показателями, а именно:2,8 сантиметра;
3 сантиметра;
4 сантиметра.
Данный параметр будет напрямую отражаться на крепости и стоимости вашей кухонной мебели. Соответственно, чем толще, тем прочнее.
Уровень нависания столешницы
Действительно, придется вам оценивать и такой показатель, даже если вы о нем ранее и не подозревали. Так, уровень нависания столешницы может составлять:до 3-5 сантиметров с передней стороны шкафа;
до 5-10 сантиметров с задней стороны шкафа.
Если учитывать наличие данного запаса, то можно спокойно разместить за шкафами такие инженерно-сетевые элементы, как:
электрическая проводка;
трубы и т.д.
Обычно они проходят именно по стенам, поэтому, чтобы не изощряться и не прятать их, используйте искомое нависание.
Ширина фасадов
Ширина фасадов – еще один показатель, у которого имеются несколько стандартных размеров. Они будут следующими:от 30 сантиметров;
до 40 сантиметров.
Поскольку мебель сейчас изготавливается довольно часто под заказ, как правило, ширина шкафчиков, а вместе с ними и фасадов, действительно разнится.
Обратите внимание: не стоит осуществлять установку мебели с величиной ширины фасада, равной более чем 90 сантиметрам, так как столь широкий шкаф будет приносить серьезные неудобства во время использования предмета мебели
Высота промежутков между внутренними полками шкафов
Данный параметр составляет обычно:от 20 сантиметров;
до 40 сантиметров.
Все будет зависеть от того, какое назначение имеет тот или иной шкафчик. Данные параметры, хоть и являются стандартными, вовсе не обязательны к соблюдению, это вы также должны учитывать.
Все перечисленные в таблице выше параметры имеют тесную связь друг с другом
Даже больше того, на основе каждого из них строятся другие, поэтому, размерность важно строго учитывать, так как только это может помочь вам сохранить и приумножить максимальные функциональность и удобство пространства, отведенного для приготовления пищи
Даже заказав мебель с неудачными для вашей кухни размерами, вы самостоятельно можете данную ситуацию «переиграть». Например:
- сменить слишком низкие выкручивающиеся ножки на детали большей высоты;
- в принципе убрать ножки;
- заменить слишком широкий шкаф более узким и т.д.
Некоторые параметры приобретаемой вами мебели можно регулировать, например, вы можете откручивать ножки и прикручивать детали длиннее или короче
Конечно, в большинстве случаев для внесения вышеупомянутых изменений необходимо заплатить дополнительные денежные средства, поверх тех, которые были потрачены вами изначально, поэтому, лучше все-таки сразу же делать правильные расчеты. Тогда кухня все же будет выглядеть максимально органично.
Размеры напольного кухонного шкафа: стандартные и нестандартные габариты
Габариты нижних шкафов зависят от многих факторов. Например, стандартная высота гарнитура рекомендуется для человека среднего роста – 170 см. Для высоких обитателей квартиры или, наоборот, для миниатюрных хозяек следует руководствоваться другими требованиями. Главное условие – кухня должна быть удобной в процессе эксплуатации.

При установке шкафов на кухни стоит знать параметры нижнего ряда
С целью безопасного расположения газовых и электрических приборов при установке и определении размеров нижних кухонных шкафов следует руководствоваться определенными нормами:
варочную газовую поверхность нужно размещать на расстоянии как минимум 50 см от холодильника и 30 см от окна, мойки и стены.
Статья по теме:
- дистанция между электророзетками и мойкой должна составлять 50 см, что целесообразно для максимально комфортного использования электроприборов;
- зону нарезки не стоит располагать вблизи окон, чтобы избежать загрязнений и попадания штор в ножи режущих приборов.
Особое внимание следует уделить установке варочной поверхности. Под ней не рекомендуется размещать шкафы с выдвижными ящиками, так как с их помощью дети могут легко добраться до плиты
По этой же причине следует устанавливать духовой шкаф на уровне груди. Под ним также не стоит располагать шкафы шухлядного типа. Далее разберемся с конкретными габаритами нижних кухонных шкафов.

Стандартные размеры нижнего ряда кухни обычно составляют 85 см
Стандартная высота кухонных шкафов напольного типа
Стандартная высота нижних шкафов составляет 85 см и включает при этом несколько параметров:
- высота нижнего цоколя – до 10 см;
- на высоту нижних шкафов влияет толщина столешницы, которая может иметь такие параметры: 2,8, 3,8, а также 4 см;
- размер кухонных фасадов (нижних) составляет в среднем 72 см.
Кроме того, высота отдельных компонентов нижних шкафов продиктована их видом. Так, нижние модули могут включать в себя следующие элементы:
- шкаф под мойку – обычно полый внутри, без полок, с одной или двумя дверцами;
- шкаф с одной или двумя полками;
- шкафчик, оснащенный 3-5 выдвижными ящиками-метабоксами;
- секцию с полкой и верхним ящичком;
- секцию для встраивания техники (варочной поверхности и духового шкафа, стиральной или посудомоечной машины);
- узкий шкаф карго (бутылочницу).

Параметры имеют тесную взаимосвязь, поэтому важно соблюдать размеры, это поможет сохранить функциональность кухонного помещения
Высоту нижних шкафов кухни помогут отрегулировать ножки, которые оснащены выкручивающимся механизмом. Эта особенность особенно важна, если хозяйка кухни имеет рост выше или ниже средней отметки. Слишком злоупотреблять этой особенностью не стоит, так как кухня утратит органичный вид.
Стандартная глубина нижних кухонных шкафов и их ширина
Габариты нижних кухонных шкафов зависят от размеров столешницы. Ее стандартная глубина составляет 60 см, поэтому минимальные параметры глубины кухонных шкафов – от 46 см, так как столешница должна нависать над шкафами, а между задней стенкой и столешницей должен быть небольшой зазор. В случае установки выдвижных ящичков необходимо учесть, что их длина должна быть на 1 см короче глубины самого шкафа.

Глубина нижних шкафов должна составлять не меньше 46 см
Стандартная глубина шкафа напольного достигает 56-58 см плюс 2-5 см декоративного плинтуса на столешнице. Выступ столешницы впереди составляет максимум 3 см, а минимум – 5 см. Его наличие позволяет защитить корпус от загрязнений. Сзади шкафа предусмотрен зазор столешницы, необходимый для свободного размещения газовых, электрических и водных коммуникаций. Размеры кухонного шкафа под мойку должны предусматривать двухсантиметровые зазоры вокруг встроенной раковины.
Ширина фасадов нижних шкафов колеблется от 30 до 45 см. Мебель, имеющая более широкие габариты, будет неудобна в использовании, так как открывание дверец предполагает наличие дополнительного пространства. Идеальное расстояние между нижними полками – 20-40 см.
Размеры кухонного шкафа под духовой шкаф должны соответствовать габаритам встраиваемой техники с учетом зазора сзади прибора для подведения электропроводки или газовых труб.

Стандартная глубина или ширина столешницы может иметь три показателя – 60 см, 90 см и 1 м
Нижний ряд
Стандартные размеры для напольной кухонной мебели следующие:
- общая высота – 85 см;
- высота цоколя – 10 см;
- в глубину шкаф имеет минимум 46 см (если ящик выдвижной, сам он имеет длину 45 см, плюс один сантиметр запаса между ним и задней стенкой модуля), но наиболее популярными считаются размеры от 56 см до 58 см;
- в ширину (или в глубину) столешницы бывают трех размеров: 60 см, 90 см и 120 сантиметров (последний вариант – редкость);
- по толщине столешницы также бывают разными: 28 см, 38 см и 40 см. От толщины столешницы зависит, насколько она будет крепкой и дорогой;
- нависание в передней части столешницы от 3 до 5 см, в задней части от 5 до 10 см. Сзади специально даётся больший запас, чтобы удобно можно было разместить за шкафом коммуникативные трубы и электропроводку;
- один фасад имеет в ширину 30-45 см. Если тумба, состоящая из двух фасадов, будет шире 90 см, ею неудобно будет пользоваться;
- внутренние полки находятся одна от другой на высоте 20-40 см (здесь строгих правил нет, и каждый хозяин устанавливает полки по своему усмотрению).

Подробнее о параметрах
Связь между каждым из параметров очень тесная
По высоте нижняя кухонная мебель может быть скорректирована специальными выкручивающимися ножками, и это очень важно, потому что хозяюшки бывают и низкого роста, и высокого, а удобно должно быть всем
И если хозяйке нужно, к примеру, нашинковать капусту, то ей бы хотелось при этом не наклоняться, а работать с прямой спиной, в то время как месить тесто на такой же высоте ей будет неудобно, потому что на высокой столешнице сложно прикладывать необходимое для этого усилие – на весу руки быстро устанут.

При этом нужно постараться не переусердствовать с изменением высоты, иначе кухня потеряет свою органичность.
В напольных модулях каркас должен быть выше фасада. Если речь идёт об одном фасаде, то разница будет 1, 7 см, а если шкаф с ящиками и несколькими дверцами, то эта величина увеличивается. Такая разница нужна для того, чтобы дверцы легко открывались, не повреждая каплесборник на нижней части столешницы.
Размеры шкафа в глубину всецело будут зависеть от размеров, которые имеет столешница.


Нестандартные размеры кухонного гарнитура
Установку рабочих поверхностей кухонного гарнитура лучше производить на разных уровнях. Специалисты рекомендуют разноуровневые конструкции, поскольку они значительно упрощают рабочие процессы. Каждый уровень тумбы оправдывает свое расположение:
- Мойку и поверхности для разделки продуктов лучше расположить выше.
- Рабочая зона должна быть повыше мойки.
- Месторасположение варочной зоны нужно урезать в высоте.
Высоту кухонного гарнитура от пола можно увеличить самостоятельно, установив на нижних ящиках ножки. Параметры верхних модулей разнообразные, это и делает кухонную мебель многофункциональной и уникальной.
Чертежи и схемы кухонных шкафов (эскизы)
Если кто-то сомневается, нужны ли для того, чтобы правильно определить размеры кухонных шкафов чертежи, ответ однозначный — проектирование кухонной мебели делается обязательно. Первоначально проводят замеры помещения, а затем, отталкиваясь от них, набрасывают эскизы будущих элементов мебели и их расстановку по периметру.
Без эскизов сделать кухонные шкафы будет непросто.
Размер комнаты, разводка коммуникаций, расположение окон и дверей, наличие нестандартных проемов — все это повлияет на размещение многих функциональных объектов.
Размещение объектов во многом зависит от размера комнаты.
Кроме того, на схеме нужно четко обозначить, где будут располагаться основные коммуникации и бытовая техника:
- плита или варочная поверхность;
- посудомоечная машина;
- холодильник;
- мойка;
- вытяжной шкаф;
- розетки;
- трубы подачи газа, воды и канализации.
На чертеже нужно обозначить расположение основных элементов кухни.
После того, как сделаны все необходимые измерения и есть общий чертеж будущего гарнитура, можно приступить к проектированию отдельных его частей.
Стандартные
Чтобы сделать чертеж стандартного кухонного гарнитура, не нужно прилагать много усилий — такие наборы состоят из шкафов, размеры которых типовые для любой модели.
Стандартный гарнитур состоит из типовых шкафов.
Они могут колебаться, но в большинстве случаев это касается только длины, которая зависит от площади помещения. Остальные параметры остаются практически неизменными и максимально составляют (высота; ширина; глубина в см):
- для верхних: от 70х30х30 до 90х90х30;
- для нижних: от 85х30х40 до 90х90х50;
- угловой нижний: 80х80 или 90х90;
- угловой верхний: 55х55 или 60х60.
Чертеж стандартного гарнитура сделать несложно.
Нижний ряд
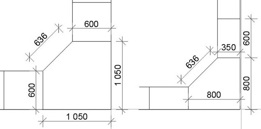
Кроме стандартных нижних шкафов с полками, следует учитывать, что потребуется сделать расчет для тумбы под мойку. Размеры могут быть следующие:
- ширина: 800;
- боковые стены: 500х722;
- поддон: 500х768;
- верхняя планка: 80х768;
- нижняя планка: 100х800.
Размеры тумбы под мойку могут отличаться.
Тумба нижняя с одной полкой шириной 600 мм выполнена с размерами:
- боковые стены: 500х722;
- поддон: 500х568;
- полка: 500х568;
- нижняя планка: 100х600.
Для нижней тумбы можно сделать ширину 600 мм.Столешница должна нависать над краями на несколько сантиметров.
Особенности кухонной мебели: размеры гарнитуров и их значение
Основу обстановки на любой кухне составляет кухонный гарнитур. Мебель должна соответствовать определенным требованиям, которые призваны выполнять основную задачу – создавать функциональность и комфорт во время работы и отдыха в помещении.
Принципиально важно, чтобы каждый сантиметр имеющегося пространства использовался с максимальной рациональностью, а все шкафы точно вписывались в планировку помещения. Особенно необходимо, чтобы габариты мебели соответствовали росту жильцов дома. Они не должны прилагать особых усилий, чтобы достать предметы с высоких полок или чрезмерно глубоких шкафов
Они не должны прилагать особых усилий, чтобы достать предметы с высоких полок или чрезмерно глубоких шкафов.
Именно поэтому при расчетах стандартных размеров кухонного гарнитура ученые инженеры руководствовались средними антропометрическими характеристиками людей европеоидной расы, которые включают рост тела в покое и в процессе выполнения определенных движений: наклонов, приседаний, вытягивания рук в ширину и высоту. Исходя из этих расчетов, были определены и стандартные габариты кухонных гарнитуров и бытовой техники.
Тем не менее довольно часто в современной планировке кухонного пространства используются нестандартные размеры гарнитура с целью наиболее рационального применения имеющегося в помещении пространства. В таких случаях мебель может изготавливаться на заказ с учетом индивидуальных требований хозяев дома или квартиры.
Изготовление кухни — чертежи, планы
Первым пунктом в изготовлении чертежей кухонной мебели будут точные замеры помещения. Зная длину стен, мы можем легко посчитать размеры шкафов. Высота стен окончательно ограничит габариты нашей мебели. После этого мы можем подобрать подходящие для нас размеры. Можно воспользоваться стандартными параметрами и принять их за основу. 850 мм – высота кухонных напольных шкафов со столешницей, ширина может быть взята в зависимости от ваших потребностей, от 300 мм до 800 мм. Глубина ящика может быть в разбеге 400—500 мм. Если ставить выезжающие полочки, то лучше использовать минимальные размеры, так мы сможем сэкономить место. А вот максимальные величины можно принять, если мы проектируем распашные дверцы. По стандарту шкаф под мойку мы берём размером 800 мм. Но если размеры кухни маловаты, вы можете урезать его до 600 мм. Навесные шкафы по ширине проще подобрать такие же, как и напольные. Но в моде сейчас урезать шкафы до глубины в 300 мм. Высота обычно 715 мм. Стандартное расстояние между напольными и навесными ящиками – 650 мм. Но если учесть, что пользоваться шкафами будет чаще всего хозяйка, то можно выбрать расстояние исходя из её роста.
Все стандартные размеры не являются жёстким требованием. Так как кухня делается под свои нужды и своими руками, тем самым вы можете отходить от стандартов, если вам будет так комфортнее
Однако и тут есть свои тонкости, к примеру обратите внимание на нестандартные размеры кухонных фасадов. Именно от них будет зависеть цена на всю мебельную гарнитуру
Также нужно не забыть и то, что помимо мебели будет установлена бытовая техника. Её размеры тоже нужно перенести на чертёж. После измерения всех составляющих кухни вы можете приступать к перенесению всего на бумагу или в компьютерную программу.
Чертежи для самостоятельного изготовления
Стандартные гарнитуры удобны, если предполагается устанавливать их в кухню среднего размера. Когда же нужно обставить малогабаритное или нестандартное по планировке помещение, стоит задуматься о мебели с индивидуальными размерами. Ее можно заказать специалистам или изготовить самостоятельно.
Во втором случае потребуется сначала создать план-проект, проведя следующие мероприятия:
- Измерить кухню (стены, пол, периметр).
- Нарисовать на листе бумаги вид комнаты сверху используя полученные размеры в масштабе 1:10.
- Отметить на чертеже расположение инженерных коммуникаций.
- Разместить виртуально бытовую технику.
- Проверить, достаточно ли места для открывания дверей, выдвижения ящиков, отодвигания стульев и перемещения между функциональными зонами.
После выполнения всех измерений можно определить, шкафы каких габаритов потребуются для конкретной кухни, а также решить, будут ли нужны пеналы, напольные или навесные конструкции.
Мнение эксперта
Ольга Коваленко
С 2010 года занимаюсь дизайн-проектированием интерьеров и архитектурным проектированием
Существует много компьютерных программ, в которых можно создать чертежи идеального расположения шкафов в пространстве кухни. В эти редакторы нужно лишь ввести данные измерений и получить результат.



































