Объединить кухню и балкон — демонтаж не несущей подоконной зоны
Правильное, проектное название объединения кухни и балкона называется демонтаж не несущей подоконной зоны. Давайте сразу посмотрим на схеме, что подразумевает демонтаж подоконной зоны.
Как видите, теория очень проста. Необходимо демонтировать часть стены под окном, которое, находится рядом с балконной дверью. В результате, получается большое пространство, которое либо застекляется раздвижными дверями, либо, после утепления и отопления балкона, остается свободным, образуя единое помещение с кухней.
Обращаю ваше внимание на два нюанса такого демонтажа:
У большинства панельных домов под балконной дверью есть достаточно большой порог. Порог это часть плиты с балконной дверью.
В статье Можно убрать порог балконной двери я рассказывал о строительном устройстве балконов и о разнице между балконами и лоджиями. Так вот, если у вас лоджия, то, скорее всего плита пола вашей кухни продолжается на выступ лоджии и технологически нет стыковки плит под порогом. В этом случае, порог вместе с подоконной зоной сносятся легко.
Если же у вас балкон, то, скорее всего балкон висит на консолях или стыкуется под порогом балкона, «придавливаясь» плитой с балконной дверью. В этом случае, снос порога и подоконной зоны, может вызвать вопросы у разрешающей организации.
Перепланировка балкона в кухню или комнату. Можно ли узаконить присоединение балкона?
Ещё недавно присоединение балкона к кухне или комнате и создание единого пространства формально было не запрещено и не разрешено нормативными документами. В 2012 году в Приложении 1 к Постановлению №508 Правительства Москвы был пункт 2.2.9, который говорил, что присоединение балконов осуществляется на основании проекта перепланировки. После выпуска в декабре 2012 года нового постановления №840, этот пункт убрали, что стало толчком для запрета таких присоединений. Данное указание было спущено “сверху”, а потому на практике такая перепланировка балкона была несогласуема- чиновники выдавали отказ, относя её к реконструкции по пункту 14 ст.1 Градостроительного кодекса РФ (хотя опять же, явно там это было не прописано). Сейчас, после выхода Постановлений Правительства Москвы № 1104 от 29.12.2017 и №1572 от 17.12.2018 появился пункт 10.19 Приложения 1, который однозначно запрещает присоединение балкона к кухне или комнате в чистом виде.
Большинство институтов- авторов проектов домов также не дают своё положительное заключение на присоединение балкона к комнате или кухне, а оно необходимо в соответствии с пунктом 1.4.7 Приложения 3 к Постановлению Правительства Москвы №508. Проектировщики обосновывают это тем, что перепланировка балконов с их присоединением к внутренним помещениям увеличивает отапливаемую площадь (да ещё холодную), на которую изначально не была рассчитана система отопления всего дома. Если разрешить всем присоединять балконы, то система не справится с новой большой нагрузкой, и жилищные условия жителей станут неприемлимыми (внутри квартиры упадёт температура ниже минимально пригодной для проживания).
Аргументы, что выполняется не просто присоединение балкона, но и его утепление с возможностью предоставить инженерный расчет нагрузки на систему отопления, после чего сделать вывод о том, что система отопления справится с дополнительной нагрузкой – не принимаются со ссылкой на то, что это повлияет на расход тепла по всему дому, району и т.п.

Раздвижные светопрозрачные перегородки (французское окно)
Некоторые устанавливают даже автоматические раздвижные двери.
Раздвижная перегородка устанавливается либо на постоянной основе, либо на время прихода приемочной комиссии, если собственнику в будущем хочется обойтись все-таки без неё. В первом случае планы БТИ после согласования полностью соответствуют реализованной перепланировке. Во втором случае на планах БТИ штрихом все-таки будет указано наличие двери (примеры на рисунке), которой по факту нет.
Присоединение балкона к комнате. План квартиры до перепланировки.
Однако, при этом, во-первых, будет согласован демонтаж подоконного блока и на БТИ уже не будет присутствовать окно, во-вторых, наличие двери в дверном проеме отмечается лишь одним штрихом (пустой проем обозначается также, но без штриха), который заметен не сильно. В-третьих, если это будет очень важным при продаже квартиры раздвижную перегородку всегда можно поставить обратно. Поэтому, даже если Вы просто хотите убрать окно и дверь в оконно-дверном проёме при выходе на балкон, то сделать это лучше после завершения выполнения всего ремонта и ухода комиссии, а потом увезти их на дачу или убрать куда-нибудь до тех времён пока не понадобится полное соответствие планировки квартиры документам БТИ. Тогда их для такого соответствия всегда можно будет поставить на место.
В Подмосковье в некоторых городах удается осуществить согласование перепланировки балконас присоединением к внутренним помещениям. Здесь всё зависит от позиции органов местного самоуправления, на которые возложены в соответствии с Жилищным кодексом РФ функции по согласованию перепланировки, а также от выпущенных ими законодательных актов.
Далее рассмотрим некоторые отличительные особенности данного вида перепланировки.
Комментарий к видео:
Изменился пункт: теперь присоединение балкона к комнате или кухне в чистом виде без установки французских окон запрещено согласно п. 10.19 Приложения 1 к Постановлению Правительства Москвы №508 (после выхода ППМ № 1104 от 29.12.2017 и ППМ №1572 от 17.12.2018).
Противопожарный простенок можно не оставлять, если квартира расположена на высоте не более 15 метров от земли (но взамен надо все равно ставить французское окно или сплошное остекление). Также вместо простенка можно установить огнеупорное стекло.
Согласование присоединения балкона к квартире
Уже не один житель Санкт-Петербурга преобразил свою квартиру и увеличил жилую площадь с помощью присоединения к ней балкона. Наша компания предоставляет услуги по согласованию присоединения балкона к квартирам. Мы помогаем оформлять документы по перепланировке и переустройству жилья в Санкт-Петербурге.
Так как эта часть жилплощади выносная, она может повлиять на облик здания. Поэтому к согласованию предъявляются особые требования.

Процесс согласования
Процесс согласования присоединения балкона к квартире состоит из следующих этапов.
Этап 1. Подготовительный этап начинается со сбора необходимых документов.
Этап 2. Далее проводятся расчеты:
- Конструктивный расчет;
- Расчет для усиления проема;
- Расчеты по теплотехнике;
- Межэтажное перекрытие и расчет нагрузки.
Этап 3. На этом этапе нужно получить согласие по объединению в следующих инстанциях: Пожарный надзор, Межведомственная комиссия, КГА.
В некоторых случаях, чтобы узаконивание было полноценным, нужно также обращаться в КГИОП и БТИ.
Этап 4. Введение в эксплуатацию.

Особенности согласования присоединения балкона к квартире
Для узаконивания перепланировки, а также последующего ремонта, следует учитывать такие особенности:
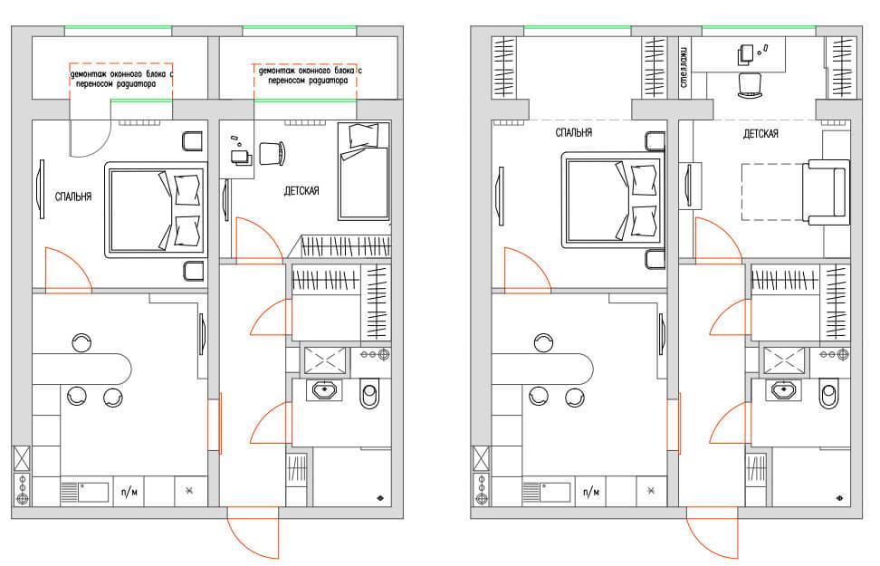
- Тепловой контур должен быть неразрывным. Для этого при демонтажных работах оконного блока и стены делается утепление.
- Если при демонтаже необходимо убрать радиатор, то его нужно перенести в специально отведенное место. На балконе радиатор устанавливать категорически запрещено.
- Нужно соблюдать требования пожарной безопасности. При пожаре балкон должен служить укрытием.

Услуги по согласованию балкона в Санкт-Петербурге
Если вы решились присоединить балкон к квартире – обращайтесь за помощью согласования в нашу компанию.

Наши специалисты проведут консультацию и помогут собрать необходимые документы. Мы выполняем работу с соблюдением требований всех инстанций и законодательства Российской Федерации.
Список документов для согласования перепланировки
Законодательство периодически изменяет условия и требования, поэтому важно быть осторожными. В 2018 году нужно было нести одни документы, а в 2020 г
придется отправлять совершенно другие.
Кроме этого, есть и другой нюанс: в вашем регионе могут быть установлены правила, которые отличаются от закреплённых в ФЗ.
Собственник квартиры предоставляет в БТИ:
- техпаспорт квартиры;
- единый жилищный документ;
- проект перепланировки (предварительно нужно будет, чтобы его разработала проектная организация);
- тех. заключение с разрешением на расширение жилплощади;
- нотариально заверенную ксерокопия свидетельства о собственности;
- паспорт (или любой другой документ, подтверждающий личность);
- разрешительное заключение МЧС РФ (пожарных);
- заключение Роспотребнадзора (СЭС);
- заключение организации-балансодержателя (т.е. управляющей компании).
Объединение лоджии с кухней со снятием оконного проема и ликвидацией дверного порожка
Сначала разберемся с порожками и их особенностями. Действуют такие правила:
- в монолитных домах присоединение возможно (но только в случае, если стены не являются несущими);
- в панельках ликвидация порожков запрещена (нарушается целостность внешних панелей + есть риск промерзания перекрытий).
Возникает вопрос о том, что же можно будет делать в панельных домах в таком случае? Законодательство разрешает уменьшение высоты порожка, но это вообще никак не проходит в документах. Т.е. инженеры БТИ могут при проверке «на месте» выяснить только присутствие / отсутствие порожка, а не его высоту.
Законодательство в 2020 году предписывает, что:
- в панельках, сданных в эксплуатацию до 2007 года, снос подоконной системы разрешается;
- в домах, введенных после 2007 г., демонтаж под запретом (МНИИТЭП вообще запрещает трогать подоконные блоки, поскольку страдает защита от прогрессивного обрушения).
Т.е. во втором случае разработчик не даст разрешение на демонтаж. Самовольные изменения и перепланировки чреваты проблемами (невозможность продать недвижимость, визиты инженеров, жалобы соседей, штрафы и предписания о ликвидации изменений).
Что касается кирпичных или блочных домов, то тут с демонтажной подоконной системы возникает еще больше сложностей.
Нужно выяснить, какова конструкция бетонной плиты:
- если она не заделана в наружную кирпичную стену (т.е. опирается на отдельные опорные элементы), то снос возможен;
- если балконная плита заделана в виде консоли, то любые изменения стены и порожка могут привести к обрушению (если не сейчас, то в будущем).
Во втором случае нужно приглашать инженеров, чтобы те провели расчеты и дали разрешение на проведение работ. В некоторых ситуациях делать усиление защемления плиты металлическими конструкциями.
Объединение балкона с кухней или комнатой при расширении дверного проема
Все зависит от того, является ли стена несущей:
- если не является несущей, то перепланировку разрешают;
- если является несущей, отказывают.
В монолитных многоквартирных домах наружные стены выполнены по принципу «пирога», т.е. там 3 слоя:
- пенобетонные (газосиликатные или же шлакобетонные) блоки;
- утеплитель (в качестве которого используются пенополистирол или минераловатные плиты);
- штукатурка (облицовочный кирпич, система вентилируемого фасада).
Подобные «пироги» делают с поэтажной опорой на плиты перекрытий. Т.е. стены в монолитных домах не являются несущими, а собственник квартиры может расширить дверной проем без риска, что это станет причиной сырости, грибков или разрешения здания.
Но есть объекты, в которых внешние стены выполнены из железобетона и являются несущими. Само собой, в таких случаях расширение дверного проема приведет к перераспределению нагрузки и проблемам.
В будущем у вас не будет болеть голова по поводу того, как узаконить «самовольные работы».
Правила объединения балкона и комнаты в монолитных зданиях:
- Если над проёмом ненесущая стена, можно проводить демонтаж до самой плиты перекрытия.
- Если над проёмом несущий ж/б ригель, то трогать его нельзя. Высоту проема увеличиваем до этого элемента.
- Установка распашных или раздвижных дверей на месте демонтированной стены обязательна. Это требуется для отделения балкона т теплых внутренних помещений.
- Пункт 6.20 СНиП 21-01-97 прописывает, что внутри квартиры должен быть минимум 1 балкон с противопожарным простенком. Установлены даже габариты этого простенка.
Ответ на вопрос о том, можно ли провести перепланировку, зависит от конструкции и характеристик здания. Но периодически возникают и другие моменты, связанные с изменением площади и функционального назначения помещений.
Нужно учесть все возможные варианты объединения и использовать оптимальный.
Варианты объединения
В зависимости от особенностей конструкции здания и личных предпочтений владельца жилья практикуются 2 способа совмещения кухни и лоджии:
- частичное;
- полное.
Оба варианта в обязательном порядке требуют согласования в соответствующих инстанциях. За несанкционированную перепланировку владелец помещения может быть оштрафован. Кроме того, если самовольно разрушенная конструкция была несущей, хозяевам придется восстановить первоначальную планировку в кратчайшие сроки. Если владельцы демонтировали без разрешения только окна лоджии, в случае продажи квартиры им придется восстанавливать первозданный вид жилья.
Частичное
Такой вариант объединения зачастую применяют в случаях, когда БТИ не дает разрешения на снос всей стены. Частичное совмещение предполагает демонтаж окон и дверей лоджии с оставлением части бетонных перегородок. При этом нетронутый простенок можно успешно использовать в качестве основания барной стойки или какой-либо рабочей поверхности. Декоративное оформление позволит сделать данный элемент частью оригинального дизайна.

Полное
Такой способ совмещения предполагает устранение стены между кухней и лоджией целиком. При этом комната для приготовления пищи становится ощутимо просторней. Отсутствие бетонных полустен между помещениями позволяет более свободно распорядиться образовавшимся пространством
Однако при этом важно помнить, что переносить на лоджию батареи централизованного отопления можно только в очень редких случаях. Для согрева объединенной кухни придется использовать другие методы

Нормы законодательства по этому вопросу
Как балкон, так и лоджия, не являются жилыми помещениями, поэтому вопрос самовольного объединения их с комнатой или кухней законодательство не одобряет. Это понятно, так как несведущий человек не сможет разобраться в конструкции дома, определить несущие стены комнат, увидеть способ крепления балконных фрагментов и учесть другие специфические моменты. Попробуем разобраться, как решить эту проблему.
Объединение лоджии с комнатой, как и объединение балкона, увеличивает жилую площадь. Это приводит к несоответствию фактического размера комнаты и квадратных метров, указанных в техническом паспорте и правоустанавливающих документах. Также меняется назначение помещения балкона.
Однако ни в одном законодательном документе прямо не говорится, что этого делать нельзя. Все тот же Жилищный кодекс РФ, в статье 26 подробно рассматривает порядок получения разрешения на переустройство или перепланировку жилого помещения.

Подготовка документов для получения одобрения на объединение помещений (комнат) начинается с изготовления проектной документации. Этими работами занимается организация, имеющая специальную лицензию. Скорее всего, разработчик будет выезжать на место, для составления эскиза и оценки технической возможности, взяв за основу проект вашего дома. Полученный в итоге документ будет гарантией того, что перепланировка не ущемляет интересы соседей, безопасна для конструкции здания и соответствует требованиям СНиП и СанПиН.
Далее наступает этап согласования проекта с газовой, пожарной службами, а также горэлектросетью и теплоснабжающей организацией. Если дом относится к объекту культурного наследия, то потребуется одобрение органов по защите памятников.
Следующий шаг – составление заявления установленной формы и подача его в отдел городской архитектуры или в многофункциональный центр. К нему прикладываются следующие оформленные документы:
- проект;
- правоустанавливающие документы на квартиру;
- письменные согласия всех проживающих в данном помещении граждан;
- технический паспорт;
- выписка с лицевого счета о составе семьи;
- заключение от пожарной организации;
- паспорт собственника;
- экспертное техническое заключение.
Документы, по желанию заявителя, предоставляются в виде заверенных копий или в электронном виде.
Заявление рассматривается в архитектурном отделе или жилищной инспекции не более 45 дней, в зависимости от сложности проекта. Собственнику выдается на руки расписка в принятии документов.
После рассмотрения вопроса, в течение трех рабочих дней выдается разрешение (либо мотивированный отказ) на проведение работ, в котором указан срок выполнения перепланировки. Получить разрешение можно лично или по почте.
После оформления проводятся все необходимые операции по перепланировке комнат. Следующими действиями будет составление нового техпаспорта и оформление приемочной комиссией акта выполненных работ. Затем все документы на уже большую жилую площадь передаются на регистрацию.
Законно ли объединение лоджии с комнатой?
Еще один часто задаваемый вопрос, ответ на который требует небольшого пояснения. Объединение комнаты с лоджией законно, но такую перепланировку нужно проводить правильно.
К сожалению, часто такие работы собственниками помещений предварительно не согласуются с местными органами власти и, как итог, проводятся с серьезными нарушениями строительных норм и правил.
Давайте посмотрим, что говорит про объединение лоджии с комнатой законодательство. Обратимся к двум основополагающим документам, освещающим этот вопрос:
- Постановлению Государственного комитета РФ по строительству и жилищно-коммунальному комплексу от 27 сентября 2003 года № 170 «Об утверждении Правил и норм технической эксплуатации жилищного фонда».
- Постановлению Правительства Москвы от 25 октября 2011 года № 508-ПП «Об организации переустройства и (или) перепланировки жилых и нежилых помещений в многоквартирных домах и жилых домах».
В п. 4.2.4.9 первого постановления сказано, что не допускается использование лоджий не по назначению. Кроме того, на них нельзя размещать громоздкие и тяжелые вещи.
А в п. 10.19 второго постановления прямо указано, что при перепланировке запрещено объединять лоджию с внутренними помещениями квартиры – кухнями, коридорами и комнатами.
Это значит, что жилищная инспекция, выдающая собственникам столичных квартир разрешения на перепланировки, откажет в согласовании ремонта, при котором лоджия станет частью жилой комнаты.
Проект перепланировки квартиры с объединением лоджии и комнаты в панельном доме серии П3:
У вас сразу возникнет вопрос, как такое может быть, ведь только на интернет-порталах, посвященным дизайну интерьеров, без труда можно найти сотни фотоснимков жилых помещений, на которых хорошо видны присоединенные к комнатам лоджии?
Причем варианты объединения лоджии с комнатой изображены самые разные: в одних квартирах убраны окно и дверь на лоджию, а подоконный блок приспособлен под компьютерный стол, декоративную полку и т.п., в других вообще между помещениями отсутствует какая-либо перегородка, то есть оконно-дверной короб и подоконная часть стены демонтированы полностью.
Что тут можно ответить? Ежегодно москвичи в своих квартирах проводят тысячи незаконных перепланировок, а потом пытаются их узаконить через Мосжилинспекцию. На фотографиях с полноценным объединением лоджии и комнаты вы как раз и видите примеры таких самовольных перепланировок, за которые предусмотрена административная ответственность.
Кстати, не все такие перепланировки незаконны. Многие могли быть сделаны несколько лет назад, когда объединение лоджии с комнатой в «чистом виде» еще разрешалось. Но теперь подобная перепланировка запрещена.
Преимущества и недостатки перепланировки кухни
Преимущества увеличения площади кухни очевидны:
- наличие свободного пространства позволяет размещаться большему количеству гостей, а также принимать пищу всей семьей в комфортных условиях;
- за счет совмещения увеличивается и освещенность, так как в новом объединенном пространстве больше окон;
- устраняется такое неудобство, как теснота при работе на кухне;
- во время приготовления еды можно одновременно общаться с гостями или семьей и рассчитывать на их помощь при подаче готовых блюд на стол.
Однако стоит учитывать и недостатки объединения:
- Запах. Выделяемый при приготовлении пищи аромат будет распространять на площадь объединенного помещения. Это не всегда уместно и приятно окружающим, например, при приготовлении остро пахнущих блюд. Конструкция многоквартирных домов не оборудована вентиляцией в жилых помещениях, ограничиваясь ей только на кухне и в санузле.
- Влажность. Кипящие чайники и кастрюли неизменно распространят влажный воздух по всей квартире. Это может привести к возникновению плесени и повреждению покрытий стен и потолка.
- Использование специальных материалов при ремонте. Учитывая возможность повышенной влажности, а также распространения микрочастиц по комнате, для неё необходимо подбирать особую мебель, предметы интерьера и декора, материал для покрытия стен и потолка.
- Шум. Велика вероятность того, что шум при работе на кухне будет мешать отдыхать. Кроме того, не стоит забывать про звуки работающих бытовых приборов, которыми оборудуется кухня. Например: холодильника, посудомоечной и стиральной машины, миксеров и мясорубок.
- Беспорядок. Объединять кухню с комнатой следует тем, кто готов убирать рабочие поверхности сразу по окончании приготовления пищи. Ведь такой беспорядок нельзя будет скрыть за дверью и оставить на потом.
- Сложный процесс ремонта. Кроме того, что сами работы по объединению очень грязные, они потребуют согласования и утверждения результата. Именно этот фактор часто останавливает хозяев в реализации проектов перепланировки.
Если сложности процесса согласования владельцев не смущают, а комфорт и дизайн интерьера являются более весомыми, стоит включиться в перепланировку квартиры, объединение кухни и комнаты при этом следует произвести по закону.
Оформление документов для перепланировки:
Смотрите это видео на YouTube
12 мая 2018 Юлия Юрьевна
1092
Оформление
Соединив балконы с кухней, следует подумать о визуальном зонировании помещения. Очень эффектно смотрятся декоративные арки разной конфигурации и формы. Проем с волнистыми откосами хорошо подойдет к интерьеру в стиле модерн, квадратная арка сочетается с современным дизайном, а полукруглая – с традиционным классическим. У кухни, совмещенной с лоджией, пол может быть выше или ниже, чем на балконе. Его можно обыграть, сделав в виде подиума с подсветкой. Такой интерьер совмещенных помещений выглядит стильно и изысканно, выполняет функцию зонирования.
Совмещенная с балконом кухня предполагает распространение запахов из рабочей зоны в зону отдыха. Особенно это неудобно, если на балконе обустроен рабочий кабинет или зимний сад. Полностью изолировать совмещенное пространство помогут французские окна от пола до потолка. Такой дизайн кухни, совмещенной с балконом, красив и практичен. Во-первых, помещения остаются автономными, зато в кухню проникает гораздо больше света. Во-вторых, на месте бывшей перегородки у окна со стороны кухни можно установить барную стойку, которая станет стильным дополнением интерьера. Если на балконе сделать зимний сад, можно создать эффект присутствия комнатных растений прямо на кухне. Также хозяйки могут там выращивать зелень (лук, петрушку, укроп), корнеплоды и овощи, которые в будущем очень пригодятся в хозяйстве.

После демонтажа балконного блока получившийся проем так и напрашивается для оформления под арку

Раздвижное остекление от пола до потолка полностью разделяет кухню и балкон в закрытом положении, а в открытом создает ощущение единого пространства
Отделка стен и пола кухонь должна соответствовать совмещенным помещениям. Это может быть керамическая плитка, ламинат, линолеум или паркет. На стенах будут уместны стеновые панели, венецианская штукатурка, плитка. При выборе материалов стоит отдавать предпочтение износоустойчивым и легкомоющимся, поскольку налета копоти и жирных пятен от готовки вряд ли удастся избежать. Если присоединить балкон и установить на нем плиту, то обои клеить категорически запрещено, поскольку они легко воспламеняются. Занавески можно заменить на жалюзи или римские шторы. Что касается стиля, то здесь можно остановиться на одном конкретном либо совместить два-три. Классика хорошо сочетается с ретро или модерном, прованс можно совместить с рококо, хай-тек – с минимализмом. Очень уместен будет интерьер в стиле кантри, передающий деревенскую атмосферу, особенно если на балконе оборудован зимний сад.
Рекомендуется повесить настенные шкафчики с дополнительными полками для хранения вещей, увеличить подоконник, превратив его в столешницу. В интерьере кухни, совмещенной с балконом, будут уместны складные столики и мебель-трансформер. Первый вариант и вовсе является автономной барной стойкой, который позволяет любоваться видом из окна, попивая чашечку кофе утром. Установить такой стол не составит труда даже непрофессионалу: достаточно приобрести столешницу и зафиксировать ее при помощи кронштейнов. Если объединить балкон с примыкающим помещением и перенести туда всю кухню, освободится целая комната, которую можно оформить по своему вкусу. Рабочая зона станет гораздо меньше, поэтому такой вариант совмещенного пространства подойдет для взрослого работающего человека или для семейной пары без детей.

Такую или подобную барную стойку вполне можно сделать самостоятельно
Присоединение балкона к кухне – процесс долгий и непростой. Совмещенные помещения требуют официального разрешения на перепланировку и грамотного ремонта. Только набравшись терпения и творчески подойдя к улучшению жилищных условий, вы сможете получить результат, который приятно удивит всех домочадцев.
Разница между балконом и лоджией
Первое, что предстоит выяснить — а что, собственно, прилегает к кухне: балкон или лоджия.
Балкон имеет с квартирой одну общую стену. Если мы посмотрим на него с улицы, то увидим, что он выступает из стены дома. Из-за этого придется учитывать его выносливость и не перегружать тяжестями. А еще на него не удастся вынести батарею отопления или газовую плиту.
У лоджии три общие стены с квартирой, она не выступает на улицу. Батарею вынести все равно не удастся, но можно не переживать о нагрузках. Да и перепланировку на ней делать легче.
Больше о балконах и лоджиях мы писали в статье «Что можно сделать на балконе?».




































